
Crozilla.com
Opereta
+38 ···
Nr. anzeigenPreise & Kosten
Provision für Käufer
Bitte beachte, das Angebot kann bei Vertragsabschluss die Zahlung einer Provision beinhalten. Weitere Informationen erhältst Du vom Anbieter.
Die Wohnung
Wohnungslage
5. Geschoss
Wohnanlage
Details
Objektbeschreibung
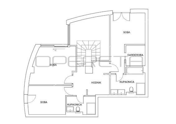
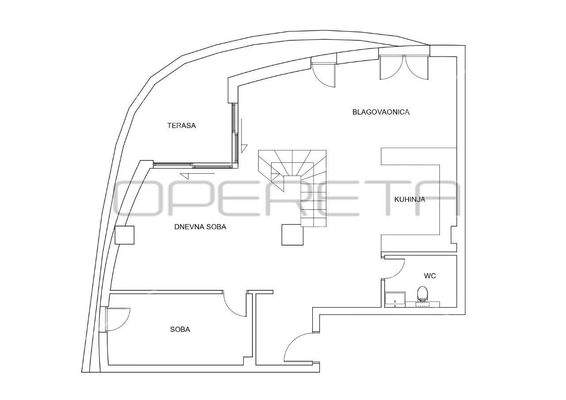
Prodaja, stan, Radnicka, luksuzno, 5s, 199m2.
Prodaje se luksuzan, dvoetazni, peterosoban stan (5.kat) ukupne neto korisne povrsine 190,28m2 s parkirnim, garaznim mjestom na etazi -3 neto korisne povrsine 8,75m2.
Podno grijanje, protuprovalna vrata, video portafon, garaza, kada, tus kabina, klima, pristup osobama s...
Weitere Informationen
Stichworte
Anzahl der Schlafzimmer: 5, Anzahl der Badezimmer: 2
Anbieter der Immobilie
Crozilla.com
Nova cesta 60, 10000 ZAGREB
Online-ID: 2lq7w58
Referenznummer: 16640864_4
Finde Angebote wie dieses
Hier geht es zu unserem Impressum, den Allgemeinen Geschäftsbedingungen, den Hinweisen zum Datenschutz und nutzungsbasierter Online-Werbung.