
Winkels Immobilien Kontor
Herr Max Lorenzen
046 ···
Nr. anzeigenPreise & Kosten
Provision für Käufer
2,98 % inkl. MwSt.
Lage
Das Ostseebad Schönhagen, ein Ortsteil der Gemeinde Brodersby im Norden der Halbinsel Schwansen, ist direkt an der Ostsee gelegen.
Das Haus befindet direkt am weitläufigen Ostseestrand. In unmittelbarer Nähe befinden sich außerdem ein Restaurant, ein Strandbistro, sowie die Touristinformation.
In Schönhagen wird...
Das Haus
Kategorie
Mehrfamilienhaus
Baujahr
1961
Bezug
Nach Vereinbarung
Energie & Heizung
Warum sehe ich diese Anzeige? – Du siehst diese Anzeige basierend auf Ihrer Navigation auf unserer Website und den Suchkriterien, die du verwendet hast.
Energieausweistyp
Bedarfsausweis
Gebäudetyp
Wohngebäude
Baujahr laut Energieausweis
1961
Wesentliche Energieträger
GAS
Gültigkeit
bis 23.11.2034
Effizienzklasse
E
Endenergiebedarf
149,60 kWh/(m²·a)
Weitere Energiedaten
Energieträger
Gas
Heizungsart
Zentralheizung
Details
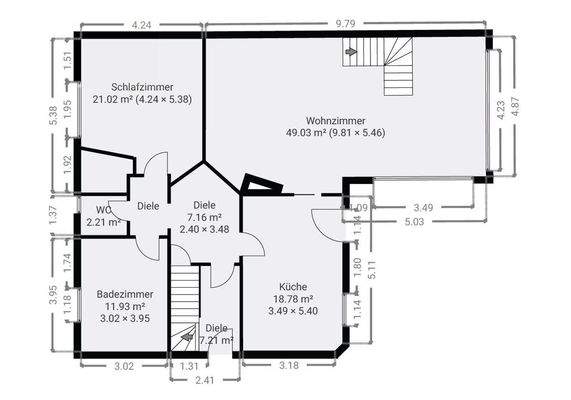
Objektbeschreibung
Das großzügige Wohnhaus überzeugt durch unmittelbare Strandnähe und viel Platz für verschiedene Wohnmodelle - vom Familiendomizil über Mehrgenerationenhaus bis hin zur Kombination von Wohnen und Arbeiten. Direkt im Ort befinden sich Bäckerei, Kaufmannsladen und Café, während zahlreiche Wander- und Radwege für...
Ausstattung
- 2 Balkone
- Garten
- 2 Terrassen
- Doppelgarage
- Einbauküche
- Kamin
- 400m vom Ostseestrand entfernt
- Großer Keller
- 3 Bäder
- 6 Zimmer
Preisinformation
2 Garagenstellplätze
Weitere Informationen
Sonstiges
Alle Angaben zu Größen und Daten basieren ausschließlich auf Informationen, die uns von unserem Auftraggeber zur Verfügung gestellt wurden. Wir übernehmen keine Gewähr für die Vollständigkeit, Richtigkeit und Aktualität dieser Angaben. Zwischenverkauf vorbehalten. Dieses Exposé ist eine Vorabinformation, als...
Anbieter der Immobilie
Winkels Immobilien Kontor
Schmiedestr. 42, 24376 Kappeln
Online-ID: 2lqat5l
Referenznummer: 250
Finde Angebote wie dieses
Hier geht es zu unserem Impressum, den Allgemeinen Geschäftsbedingungen, den Hinweisen zum Datenschutz und nutzungsbasierter Online-Werbung.