

Immobilien Hofmann GmbH & Co. KG
Herr Patrick Ohlwerter
016 ···
Nr. anzeigenPreise & Kosten
Provision für Käufer
2,38 % Provision inkl. der gesetzlichen MwSt.
Provision berechnet sich aus dem notariell beurkundeten Verkaufspreis, d. h.
2,38 % Provision inkl. der gesetzlichen MwSt.
Lage
Dornwang ist ein Ortsteil der Gemeinde Moosthenning im niederbayerischen Landkreis Dingolfing-Landau. Die Lage vereint naturnahes Wohnen mit sehr guter Verkehrsanbindung und einer soliden Infrastruktur. Dornwang befindet sich nur etwa 4 Kilometer von der Kreisstadt Dingolfing entfernt; das Stadtzentrum erreichen Sie mit dem...
Das Haus
Kategorie
Einfamilienhaus
Baujahr
2026
Bezug
Sommer 2026
Energie & Heizung
Warum sehe ich diese Anzeige? – Du siehst diese Anzeige basierend auf Ihrer Navigation auf unserer Website und den Suchkriterien, die du verwendet hast.
Weitere Energiedaten
Heizungsart
Luft-/Wasser-Wärmepumpe, Zentralheizung
Details
Objektbeschreibung
Erfüllen Sie sich den Traum vom Eigenheim!
Zum Verkauf stehen drei KfW 40 Neubau-Einfamilienhäuser, welche in Dornwang - einem Ortsteil der Gemeinde Moosthenning im niederbayerischen Landkreis Dingolfing-Landau - errichtet werden. Nach der Fertigstellung werden die Grundstücke vermessen und jedes Haus/Grundstück erhält...
Ausstattung
- KfW 40 Standard
- eigener Garten
- Terrasse zum Erholen und Entspannen
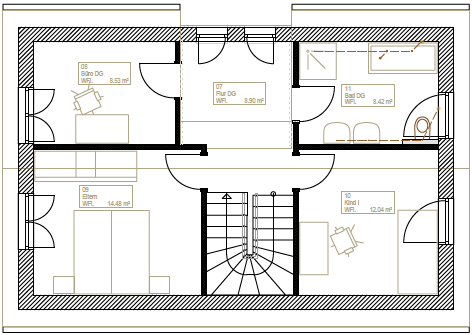
- durchdachter Grundriss
- ca. 3,52 kWp Photovoltaikanlage
- drei Außenstellplätze
- dezentrale Wohnraumlüftung durch Lüfter mit Feuchtigkeitssensor und Wärmerückgewinnung
- eine moderne Luft-Wasser-Wärmepumpe
- Fußbodenheizung...
Preisinformation
3 Stellplätze
Weitere Informationen
Sonstiges
Provisionshinweis:
Provision berechnet sich aus dem notariell beurkundeten Verkaufspreis, d. h.
2,38 % Provision inkl. der gesetzlichen MwSt.
Prospekthaftungshinweis:
Dieses Exposé stellt kein Verkaufsangebot dar. Es dient allein Informationszwecken. Alle Angaben und Darstellungen in diesem...
Anbieter der Immobilie

Online-ID: 2lqch54
Referenznummer: 1583
Finde Angebote wie dieses
Hier geht es zu unserem Impressum, den Allgemeinen Geschäftsbedingungen, den Hinweisen zum Datenschutz und nutzungsbasierter Online-Werbung.