
Aigner Immobilien GmbH
Frau Natalie Off
+49 ···
Nr. anzeigenPreise & Kosten
Provision für Käufer
3,57% inkl. MwSt.
Die Käuferprovision beträgt 3,57% inkl. gesetzlicher Mehrwertsteuer vom wirtschaftlichen Kaufpreis. Unsere Angebote erfolgen freibleibend und unverbindlich. Irrtum und Zwischenverkauf bleiben vorbehalten.
Lage
Die Gemeinde Münsing liegt eingebettet zwischen dem Ostufer des Starnberger Sees und den weiten Ebenen des Loisach- und Isartals.
Diese Lage verleiht ihr einen ganz besonderen Reiz: einerseits die unmittelbare Nähe zum Wasser, andererseits der Blick in das bayerische Alpenvorland. Rund um den Hauptort Münsing mit...
Das Haus
Kategorie
Einfamilienhaus
Baujahr
1970
Bezug
nach Vereinbarung
Energie & Heizung
Warum sehe ich diese Anzeige? – Du siehst diese Anzeige basierend auf Ihrer Navigation auf unserer Website und den Suchkriterien, die du verwendet hast.
Energieausweistyp
Bedarfsausweis
Gebäudetyp
Wohngebäude
Baujahr laut Energieausweis
1970
Gültigkeit
bis 06.06.2033
Endenergiebedarf
137,40 kWh/(m²·a)
Weitere Energiedaten
Energieträger
Öl
Heizungsart
Zentralheizung
Details
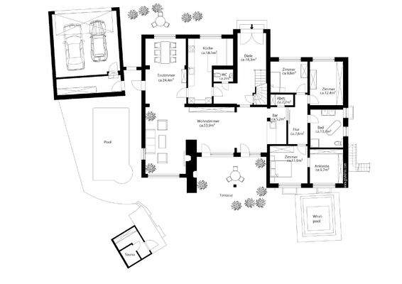
Objektbeschreibung
In traumhafter und begehrter Lage von Münsing-Ammerland erwartet Sie dieses außergewöhnliche Einfamilienhaus mit Einliegerwohnung - ein echtes Juwel für anspruchsvolle Familien, Ruhesuchende oder Liebhaber stilvollen Wohnens. Das großzügige Anwesen wurde 1970 errichtet; 1989 erweitert und 2003/2011 umfangreich saniert. Es...
Ausstattung
- grozügiger, sonniger Garten mit Obstbäumen
- Außenpool sowie Whirlpool
- Gartenhaus mit Sauna
- Offener Kamin im Wohnbereich sowie Außenkamin
- Einbauküche im Landhaus-Stil mit Elektrogroßgeräten von Siemens sowie gasbetriebener Wok-Kochstelle
- weitere Einbauküche im DG
- Parkettböden im Wohn- und...
Preisinformation
2 Garagenstellplätze
Weitere Informationen
Sonstiges
Befeuerung/Energieträger: Öl
Energieausweistyp: Bedarfsausweis
Energiekennwert: 137,4 kWh/(m²*a)
Energieeffizienzklasse: E
Baujahr: 1970
Heizungsart: Zentralheizung
Zu unseren Marktberichten - https://aigner-immobilien.de/marktinformationen/
Mehr Bilder und Infos hier -...
Anbieter der Immobilie
Aigner Immobilien GmbH
Ruffinistraße 26, 80637 München
Online-ID: 2lqd85j
Referenznummer: 42414
Finde Angebote wie dieses
Hier geht es zu unserem Impressum, den Allgemeinen Geschäftsbedingungen, den Hinweisen zum Datenschutz und nutzungsbasierter Online-Werbung.