

Sirius Facilities GmbH
Herr Felix Meier
080 ···
Nr. anzeigenPreise & Kosten
Kaution
3 Bruttowarmmieten
Provision für Mieter
Die Vermietung erfolgt PROVISIONSFREI!
Warum sehe ich diese Anzeige? – Du siehst diese Anzeige basierend auf Ihrer Navigation auf unserer Website und den Suchkriterien, die du verwendet hast.
Lage
Der Sirius Business Park in Offenbach-Waldhof bietet eine attraktive Lage im Osten von Offenbach mit einer exzellenten Anbindung sowohl an das nahegelegene Frankfurt am Main als auch an dessen Flughafen. Diese gute Verbindung wird durch die Nähe zur Autobahn A3 und den öffentlichen Nahverkehr, einschließlich einer fußläufig...
Büro-/Praxisfläche
Kategorie
Bürofläche
Energie & Heizung
Warum sehe ich diese Anzeige? – Du siehst diese Anzeige basierend auf Ihrer Navigation auf unserer Website und den Suchkriterien, die du verwendet hast.
Weitere Energiedaten
Heizungsart
Zentralheizung
Details
Objektbeschreibung
Der Sirius Business Park in Offenbach-Waldhof punktet mit seiner strategischen Lage sowie einem guten Preis-Leistungs-Verhältnis. Zur Auswahl steht eine große Bandbreite an Gewerbeflächen von Büro über Lager und Self Storages bis zu Produktionshallen. Dementsprechend findet sich hier ein bunter Mietermix, der zu vielen...
Ausstattung
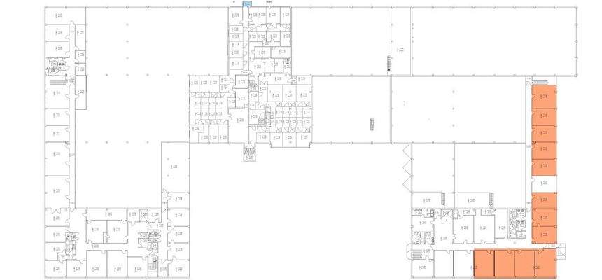
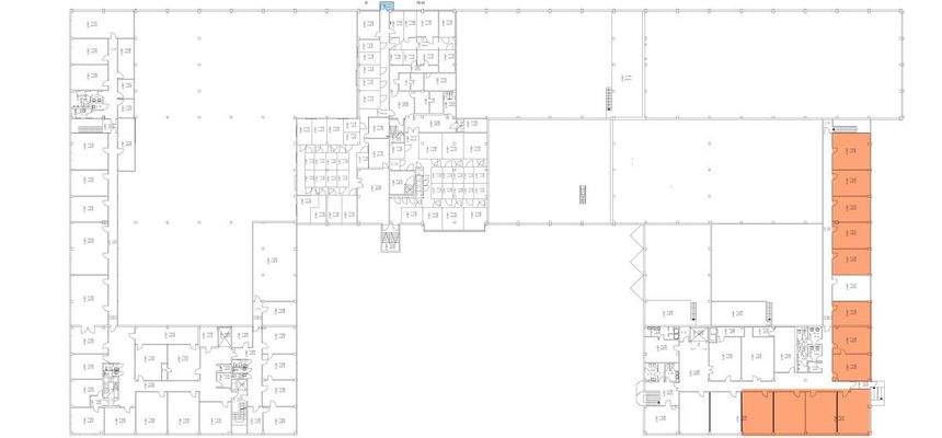
. Gesamtfläche: 650,64 m² im 1.OG (HNF: 473,11 m²)
. Behindertengerecht, Personenaufzug
. Zentralheizung , DSL
. Teppichboden, Fliesenboden
. Getrennte Damen & Herren WC's
. Sonnenschutz, Sicherheitsdienst
. Empfang, Exklusive Kantine, Teeküche
. Ab sofort verfügbar
. Aktion...
Weitere Informationen
Sonstiges
*Das Angebot ist abhängig von der Verfügbarkeit und ist nicht kombinierbar mit anderen Rabatten und Aktionen. Das Angebot gilt, sofern die beidseitige Vertragsunterschrift bis zum 16.03.26 geleistet wurde und bezieht sich auf Verträge mit einer Mindestlaufzeit von 36 Monaten. Das Angebot bezieht sich zudem...
Dokumente
Anbieter der Immobilie

Online-ID: 2lqer54
Referenznummer: A12207A
Finde Angebote wie dieses
Hier geht es zu unserem Impressum, den Allgemeinen Geschäftsbedingungen, den Hinweisen zum Datenschutz und nutzungsbasierter Online-Werbung.