

CASA Immobilien Dienstleistungs GmbH
Herr Kevin Roggenkamp
023 ···
Nr. anzeigenPreise & Kosten
Provision für Käufer
3.57 % inkl. MwSt.
Abschreibung/Anlage
Denkmalschutz-Afa
Lage
Hohenlimburg- Zentrum
Die Immobilie liegt in unmittelbarer Sichtlage direkt am Hohenlimburger Marktplatz. Infrastrukturell sind Sie durch die fußläufige Erreichbarkeit des Bus- Bahnhofs ideal angebunden.
Büro-/Praxisfläche
Kategorie
Bürofläche
Bezug
sofort
Energie & Heizung
Warum sehe ich diese Anzeige? – Du siehst diese Anzeige basierend auf Ihrer Navigation auf unserer Website und den Suchkriterien, die du verwendet hast.
Weitere Energiedaten
Energieträger
Gas
Heizungsart
Zentralheizung
Details
Objektbeschreibung
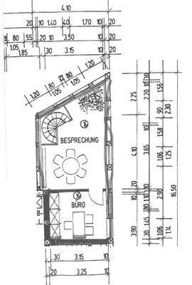
Mitten im Herzen der Hohenlimburger Innenstadt befindet sich diese ca. 50 m² große Gewerbeeinheit, verteilt auf das Erd- /und Obergeschoss eines liebevoll erhaltenen Fachwerkhauses.
Die Immobilie vereint historischen Charme mit praktischer Raumaufteilung. Hier trifft historisches Flair funktionale Struktur:
Schon...
Ausstattung
Fassade: Fachwerk, ausgemauert
Decken: Holzbalkendecke, Decken sind überwiegend abgehängt mit Einbauspots
Eingangstür: Holz, 2 Stufen
Innentüren: Holz
Fenster: Isolierverglaste Holzsprossenfenster, Baujahr 1995
Fenstersicherung: Holz- Fensterläden im EG
Geschosstreppe: Gewendelte Stahltreppe mit Holzstufen...
Weitere Informationen
Sonstiges
Da es ich um eine denkmalgeschützte Immobilie handelt, wird nach § 79 Absatz 4 des Gebäudeenergiegesetz (GEG) kein Energieausweis benötigt.
Stichworte
Nutzfläche: 50,24 m², Gesamtfläche: 50,24 m², modernisiert: 2021
Anbieter der Immobilie
CASA Immobilien Dienstleistungs GmbH
Bandstahlstr. 2, 58093 Hagen

Online-ID: 2lqf85e
Referenznummer: 6546
Finde Angebote wie dieses
Hier geht es zu unserem Impressum, den Allgemeinen Geschäftsbedingungen, den Hinweisen zum Datenschutz und nutzungsbasierter Online-Werbung.