

Immoraum GmbH
Herr Maximilian Unterreiner
+49 ···
Nr. anzeigenPreise & Kosten
Kaution
2 Bruttomonatsmieten
Provision für Mieter
provisionsfrei
Warum sehe ich diese Anzeige? – Du siehst diese Anzeige basierend auf Ihrer Navigation auf unserer Website und den Suchkriterien, die du verwendet hast.
Lage
Die Gewerbefläche ist attraktiv eingebettet am Übergang zwischen urbanem Zentrum und regionalem Verkehrsnetz. Sie profitiert von direkter Anbindung an das öffentliche Nahverkehrssystem sowie an Hauptverkehrsachsen und Autobahnen - damit sind Stadtzentrum und umliegende Regionen schnell erreichbar. Umgeben von einem Mix aus...
Büro-/Praxisfläche
Baujahr
1973
Bezug
Januar 2026
Geschoss
Erdgeschoss
Energie & Heizung
Warum sehe ich diese Anzeige? – Du siehst diese Anzeige basierend auf Ihrer Navigation auf unserer Website und den Suchkriterien, die du verwendet hast.
Weitere Energiedaten
Heizungsart
Zentralheizung
Details
Objektbeschreibung
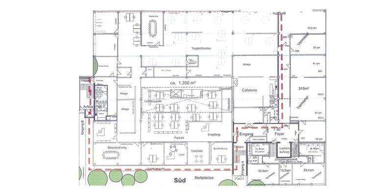
Bei diesem Objekt handelt es sich um ein modernes Bürogebäude, das durch seine flexible und hochwertige Ausstattung überzeugt. Die Fläche ist in bis zu drei Einheiten teilbar und bietet dank einer großzügigen Raumhöhe von ca. 4,00 m sowie einer Bodentraglast von 1,5 t optimale Voraussetzungen für unterschiedliche...
Ausstattung
Standardausstattung, Teppichboden, Parkettboden, Sonnenschutz außen, Sonnenschutz innen, Deckenbeleuchtung, EDV-Verkabelung, Teeküche, getr. Damen- u. Herren WCs, Zentralheizung, Außenstellplätze, TG-Stellplätze
Weitere Informationen
Sonstiges
Noch nicht das Richtige? Wir führen weitere Objekte im Großraum Stuttgart. Sprechen Sie mit unseren Beratern. Gemeinsam finden wir Ihr Wunschobjekt! Wir freuen uns auf Ihre Kontaktaufnahme!
Nach den §§ 16, 16 a EnEV ist der Eigentümer, Verkäufer, Vermieter, Verpächter und Leasinggeber bei der Vermarktung...
Anbieter der Immobilie
Immoraum GmbH
Uhlandstraße 14, 70182 Stuttgart

Online-ID: 2lqgx5j
Referenznummer: IRx2504
Finde Angebote wie dieses
Hier geht es zu unserem Impressum, den Allgemeinen Geschäftsbedingungen, den Hinweisen zum Datenschutz und nutzungsbasierter Online-Werbung.