

myImmoTrust GmbH
Herr Daniel Kasper
+49 ···
Nr. anzeigenPreise & Kosten
Provision für Käufer
4,76 % inkl. MwSt. inkl. MwSt.
Lage
Das Wohn- und Geschäftshaus liegt im charmanten Gingen an der Fils, einer idyllischen Gemeinde im Herzen Baden-Württembergs. Diese Lage ist besonders attraktiv für Familien und Geschäftsleute gleichermaßen. Alle wichtigen Einrichtungen des täglichen Bedarfs sind bequem zu erreichen, mit Einkaufsmöglichkeiten in unmittelbarer...
Das Haus
Energie & Heizung
Warum sehe ich diese Anzeige? – Du siehst diese Anzeige basierend auf Ihrer Navigation auf unserer Website und den Suchkriterien, die du verwendet hast.
Weitere Energiedaten
Haustyp
Massivhaus
Energieträger
Gas
Heizungsart
Zentralheizung
Details
Objektbeschreibung
Dieses Wohn- und Geschäftshaus bietet mit über 550 m² Gesamtfläche außergewöhnlich viel Raum für neue Ideen. Bereits entkernt, eröffnet es Investoren, Projektentwicklern und kreativen Köpfen die Chance, ein individuelles Konzept nach eigenen Vorstellungen zu realisieren.
Ob moderne Wohneinheiten, großzügige Büro- oder...
Ausstattung
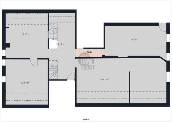
- Wohn- und Geschäftshaus mit über 550 m² Gesamtfläche
- EG ca. 180 m² (ehemalige Gastronomiefläche)
- 1. OG ca. 180 m²
- 2. OG ca. 130 m²
- DG ca. 80 m² (ca. 120 m² Grundfläche)
- bereits entkernt, ideale Basis für Sanierung & Ausbau
- Balkon und Gartenbereich vorhanden
- großer Dachboden mit...
Weitere Informationen
Sonstiges
Der Eigentümer wurde aufgefordert den Energieausweis zu beschaffen.
Der Energieausweis befindet sich in Erstellung und wird bis zum Besichtigungstermin vorgelegt.
Sie haben selber eine Immobilie zu verkaufen oder kennen jemanden, der seine Immobilie verkaufen möchte? Dann sind wir der ideale...
Anbieter der Immobilie

Online-ID: 2lqh35r
Referenznummer: DK921
Finde Angebote wie dieses
Hier geht es zu unserem Impressum, den Allgemeinen Geschäftsbedingungen, den Hinweisen zum Datenschutz und nutzungsbasierter Online-Werbung.