

Lucie C. H. Inmobilien Baleares S.L.U.
Frau Lucie Hauri
+34 ···
Nr. anzeigenPreise & Kosten
Provision für Käufer
provisionsfrei
Lage
Es Llombards ist ein kleines Dorf südlich von Santanyí, dass sich den ursprünglichen Charakter Mallorcas bewahrt hat. Enge Gassen, die Dorfkirche und die Plaça de l'Església, der zentrale Platz des Ortes, prägen das Bild. Der Ort bietet ein entspanntes, authentisches Lebensgefühl, fernab vom Tourismus. Die Strände bei Cala...
Die Immobilie
Zu diesem Angebot wurden vom Anbieter keine weiteren Daten hinterlegt. Für weitere Informationen bitte den Anbieter kontaktieren.
Nach Informationen fragenDetails
Objektbeschreibung
Wenige Schritte vom Dorf Es Llombards entfernt eröffnet sich ein ca. 19.640 m² großes Grundstück mit genehmigtem Finca Projekt und gültiger Baugenehmigung - eine ruhige Lage mit kurzen Wegen zu Cafés und Restaurants, ideal für eine exklusive private Residenz.
Das Projekt setzt auf klare Linien und fließende Übergänge...
Weitere Informationen
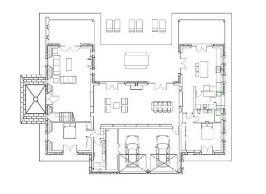
Aufteilung EG
2 Schlafzimmer
2 Badezimmer
Doppelgarage
Großer Ess- und Wohnbereich
Kamin
Terrasse
Pool
(evtl. Doppelgarage)
Aufteilung OG 1
2 Schlafzimmer
1 Badezimmer mit Dusche
1 Badezimmer mit Badewanne
1 Ankleide
alternativ
1 Schlaftzimmer
1 Ankleide
1...
Anbieter der Immobilie
Lucie C. H. Inmobilien Baleares S.L.U.
C/ Bisbe Verger, 26, E-07650 Santanyí

Online-ID: 2lqsh5w
Referenznummer: 7303
Finde Angebote wie dieses
Hier geht es zu unserem Impressum, den Allgemeinen Geschäftsbedingungen, den Hinweisen zum Datenschutz und nutzungsbasierter Online-Werbung.