
H!MM Hammer Immobilien GmbH
Herr Jakob Hammer
004 ···
Nr. anzeigenPreise & Kosten
Provision für Käufer
4,76 % MwSt. inkl. MwSt.
Lage
Die Lage der Immobilie besticht durch ihre Attraktivität: Nur 650 Meter von der beeindruckenden Steinschen Burg entfernt, die zu den Hauptattraktionen der Region zählt, sowie in unmittelbarer Nähe des malerischen Naturparks Nassau, eröffnen sich Ihnen nahezu unbegrenzte Freizeitmöglichkeiten. Der Flughafen Frankfurt am Main...
Das Haus
Baujahr
1940
Bezug
nach Vereinbarung
Energie & Heizung
Warum sehe ich diese Anzeige? – Du siehst diese Anzeige basierend auf Ihrer Navigation auf unserer Website und den Suchkriterien, die du verwendet hast.
Wärme
Energieausweistyp
Verbrauchsausweis
Gebäudetyp
Nicht-Wohngebäude
Baujahr laut Energieausweis
1940
Wesentliche Energieträger
GAS
Gültigkeit
bis 20.02.2035
Endenergieverbrauch (Wärme)
62,79 kWh/(m²·a)
Details
Objektbeschreibung
Im malerischen Herzen von Nassau eröffnet sich für Kapitalanleger sowie engagierte Gastronomen und Hoteliers eine außergewöhnliche Gelegenheit: die Übernahme einer einzigartigen Immobilie, die sowohl ein erfolgreiches Restaurant als auch moderne Hotelzimmer umfasst. Das Restaurant im Erdgeschoss bietet ein einladendes...
Ausstattung
+ Kombination aus Restaurant und modernen Hotelzimmern
+ komplette Ausstattung der Restaurantküche, Restaurant sowie die Einrichtung der Hotelzimmer werden mit verkauft und sind bereits im Preis inbegriffen
+ Die Gastronomiefläche erstreckt sich über ca. 152 m²
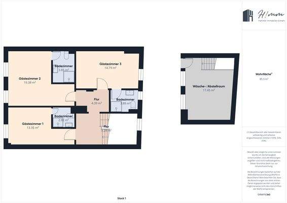
+ Wohnfläche ( Hotelzimmern und Wohnung)...
Weitere Informationen
Sonstiges
Sämtliche Bilder in diesem Exposé sind urheberrechtlich geschützt und dürfen nicht durch Dritte verwendet bzw. weitergegeben werden. Dieses Exposé wurde mit Sorgfalt zusammengestellt. Alle darin enthaltenen Angaben über das Objekt beruhen auf Informationen vom Eigentümer. Eine Haftung für deren Richtigkeit und...
Anbieter der Immobilie
H!MM Hammer Immobilien GmbH
Dryanderstasse 22, 56130 Bad Ems
Online-ID: 2lqxx5u
Referenznummer: H-10-466
Finde Angebote wie dieses
Hier geht es zu unserem Impressum, den Allgemeinen Geschäftsbedingungen, den Hinweisen zum Datenschutz und nutzungsbasierter Online-Werbung.