
Mein Guter Makler GmbH
Frau Melinda Gulyás
042 ···
Nr. anzeigenPreise & Kosten
Provision für Mieter
3 Kaltmieten zzgl. 19 % ges. MwSt.
Warum sehe ich diese Anzeige? – Du siehst diese Anzeige basierend auf Ihrer Navigation auf unserer Website und den Suchkriterien, die du verwendet hast.
Lage
Die Gewerbefläche befindet sich in zentraler Lage von Bremerhaven, im Stadtteil Mitte, nur wenige Gehminuten vom Alten Hafen und der Innenstadt entfernt. Die Umgebung ist urban geprägt und bietet eine gute Durchmischung aus Wohn- und Geschäftsgebäuden sowie touristischer Infrastruktur.
Dank der Nähe zum Stadtzentrum...
Land-/Forstwirtschaft
Kategorie
Sonstiges
Baujahr
1960
Bezug
Sofort
Energie & Heizung
Warum sehe ich diese Anzeige? – Du siehst diese Anzeige basierend auf Ihrer Navigation auf unserer Website und den Suchkriterien, die du verwendet hast.
Wärme
Strom
Energieausweistyp
Bedarfsausweis
Gebäudetyp
Nicht-Wohngebäude
Wesentliche Energieträger
Erdgas leicht
Gültigkeit
10.06.2025 bis 09.06.2035
Endenergiebedarf (Wärme)
473,40 kWh/(m²·a)
Endenergiebedarf (Strom)
27,20 kWh/(m²·a)
Details
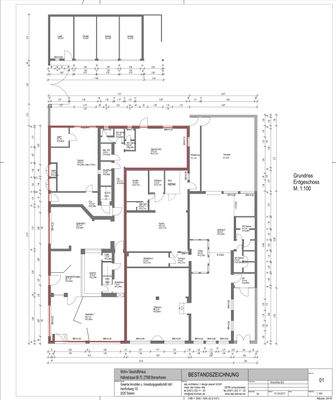
Objektbeschreibung
Flexible Gewerbefläche mit ca. 190?m² - vielseitig nutzbar und individuell anpassbar
Diese großzügige Gewerbeeinheit im Erdgeschoss bietet auf ca. 190?m² Fläche zahlreiche Nutzungsmöglichkeiten - ob als Büro, Praxis, Lager oder andere gewerbliche Zwecke. Die Fläche wurde bislang als Spielhalle genutzt und kann nach...
Ausstattung
. Gesamtfläche ca. 190?m², ebenerdig gelegen
. Flexibel nutzbare Raumstruktur mit drei großzügigen Hauptbereichen
. Separate Damen-, Herren- und Behinderten-WCs
. Zwei Abstellräume und zwei Lagerräume vorhanden
. Überdachtes Carport (ca. 37?m²) mit direktem Zugang zur Fläche
. Zusätzlicher Lagerraum im Carport...
Preisinformation
Soll-Mieteinnahmen pro Jahr: 49.693,68 EUR
Ist-Mieteinnahmen pro Jahr: 31.693,68 EUR
Weitere Informationen
Sonstiges
Diese vielseitige Gewerbefläche bietet Ihnen die ideale Grundlage für Ihr individuelles Geschäftsvorhaben - ob Büro, Lager, Studio, Praxis, Atelier oder eine ganz neue Idee. Die Eigentümer sind offen für eine flexible Nutzung und unterstützen Sie gerne bei der Anpassung der Räumlichkeiten an Ihre...
Anbieter der Immobilie
Online-ID: 2lqz35k
Referenznummer: 1212
Finde Angebote wie dieses
Hier geht es zu unserem Impressum, den Allgemeinen Geschäftsbedingungen, den Hinweisen zum Datenschutz und nutzungsbasierter Online-Werbung.