

Colliers International Deutschland GmbH
Herr Luis Zechmeister
+49 ···
Nr. anzeigenPreise & Kosten
Provision für Mieter
Bitte beachte, das Angebot kann bei Vertragsabschluss die Zahlung einer Provision beinhalten. Weitere Informationen erhältst Du vom Anbieter.
Warum sehe ich diese Anzeige? – Du siehst diese Anzeige basierend auf Ihrer Navigation auf unserer Website und den Suchkriterien, die du verwendet hast.
Lage
In wenigen Minuten zu Fuß in die Nürnberger Altstadt
Fahrzeit zur nächsten Autobahn: 3min
Laufzeit zu öffentlichen Verkehrsmitteln: 2min
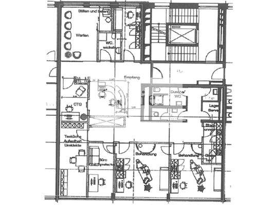
Büro-/Praxisfläche
Kategorie
Bürofläche
Details
Ausstattung
- Fenster: Doppelverglasung, Öffenbare Fenster
- Sonnenschutz: Sonnen-/Blendschutz nach Vereinbarung
- Sonstige Ausstattungsmerkmale: Dusche
- Zugangssystem: Schließsystem mechanisch
- Balkon / Terrasse: Balkon / Terrasse zur exklusiven Nutzung
- Beleuchtung Büro: Einbauleuchten, Rasterleuchten
- Belüftung...
Weitere Informationen
Sonstiges
Dieses Objekt wird im Leadmakler-Auftrag von Colliers International Deutschland GmbH betreut.
Colliers International ist ein weltweit agierendes Unternehmen für Immobilien-Dienstleistungen mit mehr als 18.000 Experten, die aus mehr als 403 Büros in 68 Ländern tätig sind.
Das Unternehmen bietet eine...
Anbieter der Immobilie

Online-ID: 2lr2c5w
Referenznummer: EXT-002065
Finde Angebote wie dieses
Hier geht es zu unserem Impressum, den Allgemeinen Geschäftsbedingungen, den Hinweisen zum Datenschutz und nutzungsbasierter Online-Werbung.