
Algor Immobilien
Frau Alexandra Gorbunov-Petrov
026 ···
Nr. anzeigenPreise & Kosten
Provision für Käufer
provisionsfrei
Lage
Die ruhige und familienfreundliche Umgebung in Puderbach ist ideal für Naturliebhaber und Erholungssuchende. Zahlreiche Wander- und Radwege laden zu abwechslungsreichen Ausflügen in die umliegende Natur ein. Hier können Sie die frische Luft und die beeindruckende Landschaft genießen, die sowohl für entspannende Spaziergänge...
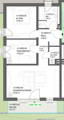
Die Wohnung
Bezug
sofort
Wohnanlage
Energie & Heizung
Warum sehe ich diese Anzeige? – Du siehst diese Anzeige basierend auf Ihrer Navigation auf unserer Website und den Suchkriterien, die du verwendet hast.
Energieausweistyp
Bedarfsausweis
Gebäudetyp
Wohngebäude
Wesentliche Energieträger
Luftwärmepumpe
Gültigkeit
25.03.2025 bis 24.03.2035
Endenergiebedarf
15,50 kWh/(m²·a)
Weitere Energiedaten
Heizungsart
Fußbodenheizung, Luft-/Wasser-Wärmepumpe
Details
Objektbeschreibung
In ruhiger, familienfreundlicher Lage entstehen moderne 3-Zimmer-Eigentumswohnungen, die Komfort, Stil und Lebensqualität auf höchstem Niveau vereinen. Durchdachte Architektur und hochwertige Materialien schaffen ein Zuhause, in dem Sie sich vom ersten Augenblick an angekommen fühlen.
Ihre Highlights
. ca. 25 m²...
Ausstattung
HIGHLIGHTS
- Teilweise raumhohe Fensterelemente
- Jede Wohnung mit Terrasse, Dachterrasse oder Balkon
- Fußbodenheizung mit individueller Raumtemperatursteuerung
- Elektrisch bedienbare Rollladen
- Alle Wohnräume mit Eichenvollholzparkett im Rustikalen/Hellen Stil
- Designfliesen in Beige 60x120 cm
-...
Preisinformation
2 Stellplätze, Kaufpreis je: 15.000,00 EUR
Weitere Informationen
Sonstiges
Das Unternehmen Algor Immobilien ist gemäß § 2 Abs. 1 Nr. 14 sowie § 11 Abs. 1 und 2 Geldwäschegesetz (GwG) verpflichtet, bei Aufnahme einer Geschäftsbeziehung die Identität des jeweiligen Vertragspartners festzustellen und zu überprüfen.
Bezüglich der angebotenen Immobilienobjekte stützen wir uns auf die...
Anbieter der Immobilie

Algor Immobilien
Wilhelm-Stöber-Platz 4, 57635 Weyerbusch
Online-ID: 2lr2h5t
Referenznummer: 2509101
Finde Angebote wie dieses
Hier geht es zu unserem Impressum, den Allgemeinen Geschäftsbedingungen, den Hinweisen zum Datenschutz und nutzungsbasierter Online-Werbung.