
Stadtland Immobilien
Herr Steffen Sigmund
030 ···
Nr. anzeigenPreise & Kosten
Verhandlungsbasis
Provision für Käufer
Bitte beachte, das Angebot beinhaltet bei Vertragsabschluss die Zahlung einer Provision. Weitere Informationen erhältst Du vom Anbieter.
Lage
AusstattungLagebeschreibung
Das Haus ist Baujahr 1934 gebaut und wurde 2004 umfassend Kernsaniert, alle Leitungen, Fenster, Böden, Decken, Sanitärbereiche, inkl. Dach.
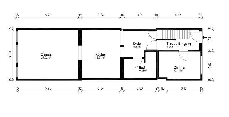
Im Erdgeschoß befindet sich ein großzügiger Wohn-Lebensbereich, eine Küche mit großem Oberlicht und Essbereich, ein Bad mit Wanne und Dusche, ein...
Das Haus
Kategorie
Reihenmittelhaus
Baujahr
1934
Bezug
112026
Derzeitige Nutzung
frei
Energie & Heizung
Warum sehe ich diese Anzeige? – Du siehst diese Anzeige basierend auf Ihrer Navigation auf unserer Website und den Suchkriterien, die du verwendet hast.
Energieausweistyp
Verbrauchsausweis
Gebäudetyp
Wohngebäude
Baujahr laut Energieausweis
1934
Wesentliche Energieträger
Gas
Gültigkeit
14.10.2025 bis 14.10.2035
Effizienzklasse
C
Endenergieverbrauch
93,40 kWh/(m²·a)
Weitere Energiedaten
Haustyp
Massivhaus
Energieträger
Gas
Heizungsart
Zentralheizung
Details
Objektbeschreibung
Dieses charmante 3-Zimmer-Reihenmittelhaus befindet sich in einer ruhigen Seitenstraße von Hennigsdorf und bietet sowohl Eigennutzern als auch Investoren eine hervorragende Gelegenheit. Das Haus liegt am Rand von Hennigsdorf und zeichnet sich durch eine durchdachte Raumaufteilung aus. Sie verfügt über ein Wohnzimmer, zwei...
Weitere Informationen
Sonstiges
Hennigsdorf ist durch seine unmittelbare Nähe zu Berlin ein attraktiver Wohnort für Pendler. Die Mischung aus naturnaher Umgebung und urbaner Infrastruktur macht den Standort besonders für junge Familien und Berufstätige interessant.
Wir bitten um Verständnis, dass wir nur vollständige schriftliche...
Dokumente
Anbieter der Immobilie
Stadtland Immobilien
Klothildestr. 1a, 13156 Berlin
Online-ID: 2lr3t5x
Finde Angebote wie dieses
Hier geht es zu unserem Impressum, den Allgemeinen Geschäftsbedingungen, den Hinweisen zum Datenschutz und nutzungsbasierter Online-Werbung.