

Hubert Hammerl Immobilien & Grunewald Immobilien
Frau Leona Grunewald
036 ···
Nr. anzeigenPreise & Kosten
Verhandlungsbasis
Provision für Käufer
Die Courtage in Höhe von 3,57 % inkl. der gesetzlichen Mehrwertsteuer auf den Kaufpreis ist mit dem Zustandekommen des Kaufvertrages (notarieller Vertragsabschluss) verdient und fällig.
Lage
Das Einfamilienhaus befindet sich in Punschrau, einem ruhigen und ländlich geprägter Ortsteil von Bad Kösen in der Nähe der Stadt Naumburg (Saale). Das Stadtzentrum von Bad Kösen ist nur etwa 6 km entfernt, die Stadt Naumburg (Saale) erreichen Sie in rund 12 km. Einkaufsmöglichkeiten, Ärzte, Schulen, ein Gymnasium sowie...
Das Haus
Geschosse
2 Geschosse
Baujahr
2002
Bezug
nach Vereinbarung
Energie & Heizung
Warum sehe ich diese Anzeige? – Du siehst diese Anzeige basierend auf Ihrer Navigation auf unserer Website und den Suchkriterien, die du verwendet hast.
Energieausweistyp
Verbrauchsausweis
Gebäudetyp
Wohngebäude
Baujahr laut Energieausweis
2002
Wesentliche Energieträger
Elektro
Gültigkeit
seit 21.10.2025
Effizienzklasse
D
Endenergieverbrauch
123,00 kWh/(m²·a) - Warmwasser enthalten
Weitere Energiedaten
Energieträger
Elektro
Details
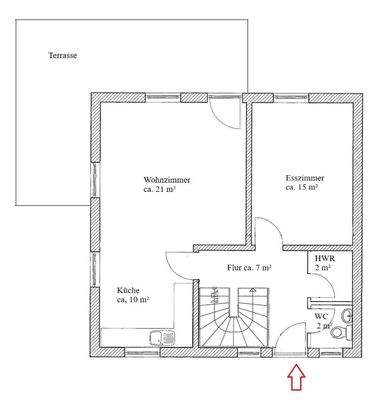
Objektbeschreibung
Dieses gepflegte, freistehende Einfamilienhaus wurde im Jahr 2002 in ruhiger Wohnlage von Punschrau errichtet. Das Haus überzeugt durch seine durchdachte Raumaufteilung, den gepflegten Gesamtzustand sowie das liebevoll angelegte Grundstück, das zum Verweilen einlädt.
Im Erdgeschoss befinden sich ein Flur, ein offener Wohn-...
Weitere Informationen
Immobilien
Ihre Immobilie ist bei uns in besten Händen - gerne sind wir auch für Sie erfolgreich!
Wenn Sie eine Immobilie verkaufen möchten oder wissen möchten was Ihre Immobilie wert ist, dann sind Sie bei uns richtig!
Wir suchen für unsere Kunden Wohnungen, Häuser und Grundstücke.
Auf unseren Seiten...
Dokumente
Anbieter der Immobilie

Online-ID: 2lr4d5v
Finde Angebote wie dieses
Hier geht es zu unserem Impressum, den Allgemeinen Geschäftsbedingungen, den Hinweisen zum Datenschutz und nutzungsbasierter Online-Werbung.