
RUHR REAL GmbH
Herr Jonas Bruckmann
+49 ···
Nr. anzeigenPreise & Kosten
Provision für Mieter
provisionsfrei
Warum sehe ich diese Anzeige? – Du siehst diese Anzeige basierend auf Ihrer Navigation auf unserer Website und den Suchkriterien, die du verwendet hast.
Lage
Das angebotene Objekt befindet sich auf dem Gelände Zeche Zollverein in Essen. Das Weltkulturerbe Zollverein bietet dabei eine historisch attraktive Arbeitsumgebung und eine hervorragende Anbindung an das örtliche Straßenverkehrsnetz. Die Büros sind sowohl über ÖPNV als auch mit dem PKW gut angebunden.
In wenigen...
Büro-/Praxisfläche
Kategorie
Bürofläche
Baujahr
2019
Bezug
nach Vereinbarung
Derzeitige Nutzung
frei
Energie & Heizung
Warum sehe ich diese Anzeige? – Du siehst diese Anzeige basierend auf Ihrer Navigation auf unserer Website und den Suchkriterien, die du verwendet hast.
Weitere Energiedaten
Energieträger
Fernwärme
Details
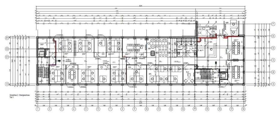
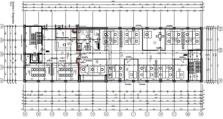
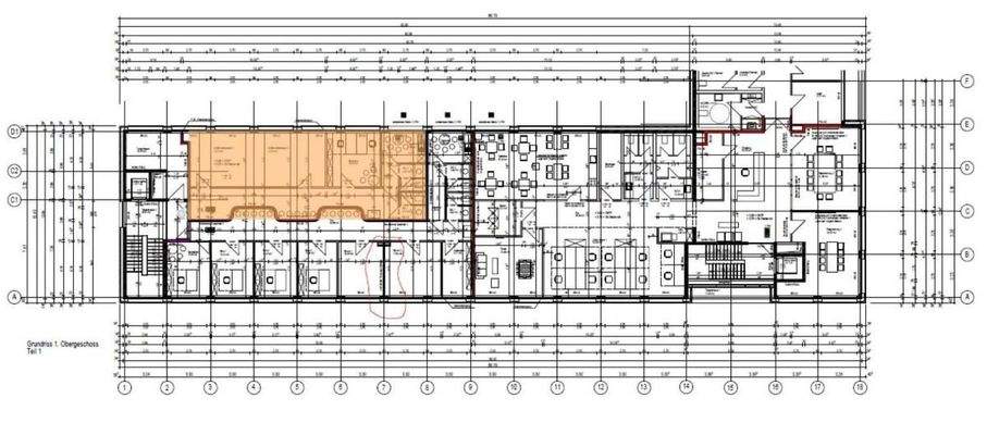
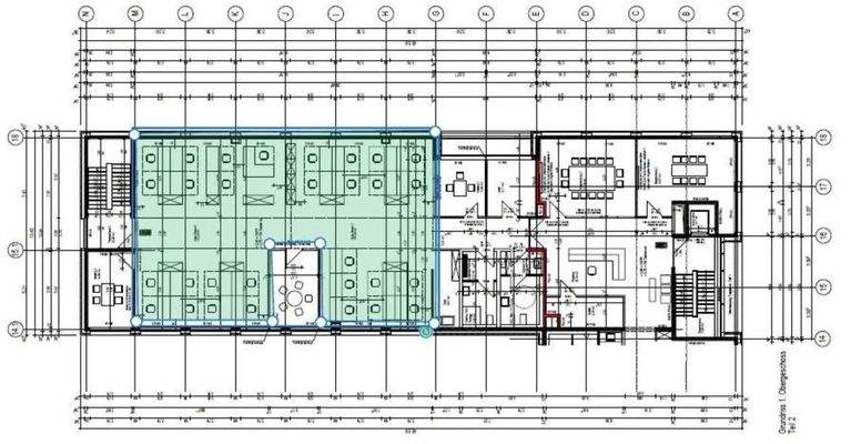
Objektbeschreibung
Bei dem angebotenen Objekt handelt es sich um ein repräsentatives 4-geschossiges Bürogebäude auf dem Gelände Zeche Zollverein in Essen. Die vakante Mietfläche ist über einen Personenaufzug sowie ein Treppenhaus erschlossen und befindet sich in einem modernen und gepflegten Zustand. Die bodentiefen Fenster ermöglichen viel...
Ausstattung
. Sonnenschutz: außenliegend, elektrisch
. Bodenbelag: Teppichboden
. Kühlung/ Lüftung: Klimaanlage
. Beleuchtung: LED-Deckenleuchten, Stehleuchten
. Teeküche: voll ausgestattet
. Stellplätze: vorhanden
. Aufzug: Personenaufzug
. Heizungsart: Luft-/Wasser-Wärmepumpe/ Fernwärme
Die Ausstattung...
Preisinformation
Nettokaltmiete: 12,50 EUR
Weitere Informationen
Sonstiges
Es gelten ausschließlich unsere AGB (www.ruhr-real.de/agb). Wir möchten Sie darauf hinweisen, dass die Angaben ausschließlich auf den uns vom Eigentümer übermittelten Unterlagen und Informationen basieren. Für Richtigkeit und Vollständigkeit übernehmen wir keine Gewähr. Zwischenvermietung...
Anbieter der Immobilie

RUHR REAL GmbH
Holsterhauser Platz 2, 45147 Essen
Online-ID: 2lr5355
Referenznummer: 4229/E2
Finde Angebote wie dieses
Hier geht es zu unserem Impressum, den Allgemeinen Geschäftsbedingungen, den Hinweisen zum Datenschutz und nutzungsbasierter Online-Werbung.