
Hannoversche Volksbank Immobilien GmbH
Herr Michael Jahns
051 ···
Nr. anzeigenPreise & Kosten
Provision für Käufer
5,95 % inkl. MwSt.
Lage
Die verkehrsgünstige Lage in direkter Nähe der B6 garantiert kurze Wege nach Hildesheim und Hannover. Auch die Autobahn A7 ist gut zu erreichen.
Büro-/Praxisfläche
Baujahr
1954
Bezug
sofort
Energie & Heizung
Warum sehe ich diese Anzeige? – Du siehst diese Anzeige basierend auf Ihrer Navigation auf unserer Website und den Suchkriterien, die du verwendet hast.
Wärme
Strom
Energieausweistyp
Verbrauchsausweis
Gebäudetyp
Nicht-Wohngebäude
Baujahr laut Energieausweis
1954
Wesentliche Energieträger
Elektroenergie
Gültigkeit
12.03.2025 bis 11.03.2035
Endenergieverbrauch (Wärme)
35,40 kWh/(m²·a)
Endenergieverbrauch (Strom)
39,90 kWh/(m²·a)
Weitere Energiedaten
Energieträger
Elektro
Heizungsart
Luft-/Wasser-Wärmepumpe
Details
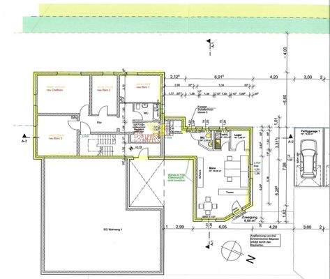
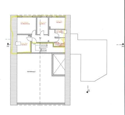
Objektbeschreibung
Kurzbeschreibung
Hof, Büroflächen mit moderner Technik, Werkstatt, Wohnraum, Halle, Garagen, Schulungsraum, Photovoltaik-Anlage und Wärmepumpe u.v.m. inklusive
Objekt
Diese gemischt genutzte Immobilie befindet sich auf einem ca. 2.304 m² großen Eigentumsgrundstück in Giesen, OT Hasede.
Eine PV-Anlage mit...
Ausstattung
Bislang wurde das Objekt von einem Elektro-Installationsbetrieb genutzt. Das ursprüngliche Wohnhaus wurde ca. im Jahre 1954 erbaut, 1963 angebaut und im Jahr 2007 umfassend saniert. Im Jahr 2018 wurde das Objekt durch einen Anbau erweitert.
Auf einen Blick:
- ca. 250 m² Bürogebäude mit hochwertiger...
Preisinformation
Soll-Mieteinnahmen pro Jahr: 52.200,00 EUR
Ist-Mieteinnahmen pro Jahr: 41.460,00 EUR
Weitere Informationen
Sonstiges
Sie besitzen eine Immobilie? Wir haben die richtigen Kontakte, um sie zu verkaufen. Rufen Sie uns gerne unter Telefon 0511-70077-0 an oder informieren Sie uns per Mail unter info@hanvbimmo.de.
Wir freuen uns auf Sie!
Die gesetzlich vorgeschriebenen Verbraucherinformationen finden Sie hier...
Anbieter der Immobilie
Hannoversche Volksbank Immobilien GmbH
Kurt-Schumacher-Str. 15, 30159 Hannover
Online-ID: 2lr5d56
Referenznummer: 20-8796
Finde Angebote wie dieses
Hier geht es zu unserem Impressum, den Allgemeinen Geschäftsbedingungen, den Hinweisen zum Datenschutz und nutzungsbasierter Online-Werbung.