

Angermann NRW GmbH
Herr Paul Rieker - Landlord Services
022 ···
Nr. anzeigenPreise & Kosten
Provision für Mieter
provisionsfrei
Warum sehe ich diese Anzeige? – Du siehst diese Anzeige basierend auf Ihrer Navigation auf unserer Website und den Suchkriterien, die du verwendet hast.
Lage
Die Büroflächen überzeugen durch ihre erstklassige Lage in der gefragten Kölner Weststadt. Hier verbinden sich moderne Infrastruktur, eine hervorragende Erreichbarkeit sowie ein attraktives Umfeld für Unternehmen unterschiedlichster Branchen.
In direkter Umgebung finden sich zahlreiche Gastronomiebetriebe, die für...
Büro-/Praxisfläche
Bezug
nach Vereinbarung
Details
Ausstattung
Ausstattungsmerkmale im Überblick:
- Bodentanks mit CAT-6-A-Verkabelung für maximale Konnektivität
- elegante Teeküchen in Hochglanzweiß
- Moderne LED-Pendelleuchten für optimale Beleuchtung
- Kühlung über Umluftkühlgeräte für ein angenehmes Raumklima
- Separat ausgewiesene Serverräume
- Hochwertiger...
Preisinformation
20 Stellplätze
76 Tiefgaragenstellplätze
Weitere Informationen
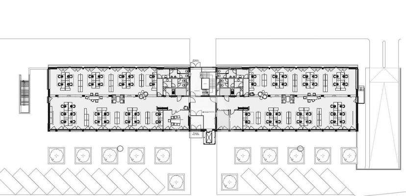
FLÄCHEN:
Das Gebäude bietet ein Büroambiente, das höchste Ansprüche an Funktionalität und Repräsentativität erfüllt. Schon der großzügige Vorplatz vermittelt einen Headquarter-Charakter und unterstreicht die repräsentative Wirkung des Standorts.
Die Flächen sind hochwertig ausgestattet und ermöglichen eine flexible...
Anbieter der Immobilie
Angermann NRW GmbH
Josef-Lammerting-Allee 18, 50933 Köln

Online-ID: 2lr5r5f
Referenznummer: 5997
Finde Angebote wie dieses
Hier geht es zu unserem Impressum, den Allgemeinen Geschäftsbedingungen, den Hinweisen zum Datenschutz und nutzungsbasierter Online-Werbung.