

Terrania GmbH
Herr Elvis Saletovic
+49 ···
Nr. anzeigenPreise & Kosten
Kaution
9225,84
Provision für Mieter
provisionsfrei
Warum sehe ich diese Anzeige? – Du siehst diese Anzeige basierend auf Ihrer Navigation auf unserer Website und den Suchkriterien, die du verwendet hast.
Lage
1A-Lage
Die Brückstraße zählt zu den lebendigsten Citylagen Dortmunds.
Hohe Passantenfrequenz, umliegender Einzelhandel, Gastronomie und kulturelle Angebote sorgen für ganztägige Nachfrage.
ÖPNV (Hbf/Innenstadt) und Parkhäuser sind in wenigen Gehminuten erreichbar.
Gastronomie/Hotel
Kategorie
Restaurant
Baujahr
1953
Bezug
sofort
Energie & Heizung
Warum sehe ich diese Anzeige? – Du siehst diese Anzeige basierend auf Ihrer Navigation auf unserer Website und den Suchkriterien, die du verwendet hast.
Wärme
Strom
Energieausweistyp
Verbrauchsausweis
Gebäudetyp
Nicht-Wohngebäude
Baujahr laut Energieausweis
1953
Wesentliche Energieträger
Fernwärme
Gültigkeit
19.12.2024 bis 19.12.2035
Endenergieverbrauch (Wärme)
53,30 kWh/(m²·a)
Endenergieverbrauch (Strom)
22,60 kWh/(m²·a)
Weitere Energiedaten
Energieträger
Fernwärme
Details
Objektbeschreibung
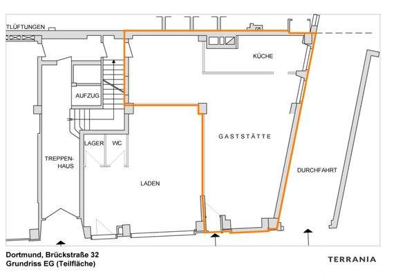
Flexible Gastronomiefläche (Gaststätte/Restaurant) mit 158,84 m² Gesamtfläche.
EG 78,73 m² + UG 80,11 m² (Keller & WC-Räume). Individuelle Gestaltung und Ausbau nach Absprache.
Die angebotene Fläche liegt in stark frequentierter Innenstadtlage der Brückstraße.
Das Erdgeschoss eignet sich ideal als Gastraum...
Ausstattung
- Gesamtfläche: 158,84 m²
- EG (Gastraum/Theke): 78,73 m²
- UG (Lager/Prep + WCs): 80,11 m²
- Nutzung: Gaststätte / Restaurant
- Ausbauzustand: nach Vereinbarung, individuell gestaltbar
- Große Schaufensterfront mit guter Sichtbarkeit
- Kurze Wege zwischen Gastraum und Nebenflächen
Weitere Informationen
Sonstiges
Die Vermietung erfolgt direkt über den Eigentümer und ist für Sie provisionsfrei.
Stichworte
Kellerfläche: 80,11 m², Zustand nach Vereinbarung
Anbieter der Immobilie
Terrania GmbH
Sendlinger Straße 47, 80331 München

Online-ID: 2lr6t5g
Referenznummer: 178121947#htIX7e
Finde Angebote wie dieses
Hier geht es zu unserem Impressum, den Allgemeinen Geschäftsbedingungen, den Hinweisen zum Datenschutz und nutzungsbasierter Online-Werbung.