
BLAIMER Immobilien GmbH
Herr Wolfgang Blaimer
004 ···
Nr. anzeigenPreise & Kosten
Provision für Käufer
provisionsfrei
Lage
Das Grundstück befindet sich in einer ruhigen und familienfreundlichen Wohngegend von Zuchering, die sich durch ihre hohe Lebensqualität auszeichnet. Die Umgebung bietet eine perfekte Mischung aus ländlichem Charme und urbaner Annehmlichkeiten.
Eine gute Anbindung an den öffentlichen Nahverkehr, der eine schnelle...
Die Wohnung
Wohnungslage
Erdgeschoss
Bezug
ab sofort
Wohnanlage
Energie & Heizung
Warum sehe ich diese Anzeige? – Du siehst diese Anzeige basierend auf Ihrer Navigation auf unserer Website und den Suchkriterien, die du verwendet hast.
Energieausweistyp
Bedarfsausweis
Gebäudetyp
Wohngebäude
Wesentliche Energieträger
LUFTWP
Gültigkeit
bis 24.06.2034
Effizienzklasse
A+
Endenergiebedarf
15,20 kWh/(m²·a)
Weitere Energiedaten
Heizungsart
Luft-/Wasser-Wärmepumpe, Zentralheizung
Details
Objektbeschreibung
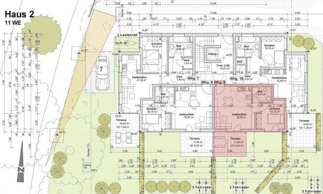
*** Haus 2 - Wohnung 9 - Moderne Eigentumswohnung in der Karlskroner Str. 27, Ingolstadt-Zuchering ***
In diesem modernen Mehrfamilienhaus entstehen 11 hochwertige Eigentumswohnungen, die durch ihren Wohnkomfort bestechen.
Für Familien, Senioren und Personen mit eingeschränkter Mobilität ist durch den...
Ausstattung
Moderne Bauweise mit innovativem Energiekonzept
Die energieeffiziente Bauweise mit innovativem Energiekonzept, Beheizung mit Luft-Wasser-Wärmepumpe und dezentralen Lüftungsanlagen in den Wohneinheiten, gewährleistet ein angenehmes Wohnklima und reduziert Ihre Energiekosten.
+ Fußbodenheizung...
Preisinformation
1 Tiefgaragenstellplatz, Kaufpreis: 25.000,00 EUR
Weitere Informationen
Sonstiges
Weitere Unterlagen, wie Wohnflächenberechnungen, Grundrisse, Ansichten, Schnittzeichnung und Visualisierungen liegen vor und können Ihnen auf Ihre Anfrage übermittelt werden.
Für weitere Informationen oder zur Vereinbarung eines Besichtigungstermins stehen wir Ihnen jederzeit gerne zur...
Anbieter der Immobilie
BLAIMER Immobilien GmbH
Regensburger Str. 297, 85055 Ingolstadt
Online-ID: 2lr7r5w
Referenznummer: BI-25-05-H2-W09
Finde Angebote wie dieses
Hier geht es zu unserem Impressum, den Allgemeinen Geschäftsbedingungen, den Hinweisen zum Datenschutz und nutzungsbasierter Online-Werbung.