
RE/MAX Lörrach, Müllheim, Freiburg
Frau Katja Mattl
004 ···
Nr. anzeigenPreise & Kosten
Provision für Käufer
3,57 % inkl. gesetzl. MwSt. (19%) inkl. MwSt.
Lage
Grenzach-Wyhlen liegt in Baden-Württemberg im Landkreis Lörrach (Dreiländereck Schweiz, Frankreich, Deutschland direkt am Rhein und an den Ausläufern des Südschwarzwalds). Die Stadt bietet eine ideale Anbindung in die Schweiz, ins Elsass, den Schwarzwald oder in Richtung Bodensee. Die Immobilie liegt im Ortsteil Grenzach, in...
Die Wohnung
Wohnungslage
Erdgeschoss
Derzeitige Nutzung
vermietet
Wohnanlage
Energie & Heizung
Warum sehe ich diese Anzeige? – Du siehst diese Anzeige basierend auf Ihrer Navigation auf unserer Website und den Suchkriterien, die du verwendet hast.
Energieausweistyp
Verbrauchsausweis
Gebäudetyp
Wohngebäude
Baujahr laut Energieausweis
1996
Wesentliche Energieträger
OEL
Gültigkeit
bis 31.08.2027
Effizienzklasse
F
Endenergieverbrauch
165,00 kWh/(m²·a)
Weitere Energiedaten
Energieträger
Gas
Heizungsart
Zentralheizung
Details
Objektbeschreibung
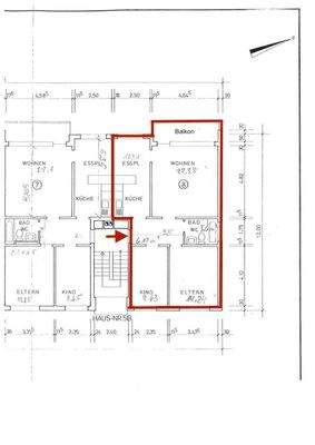
Diese sehr gepflegte 3-Zimmer Wohnung mit Balkon und Stellplatz befindet sich im EG eines Mehrfamilienhauses Baujahr 1966 in sehr guter, ruhiger Lage von Grenzach-Wyhlen. Die Wohnung verfügt über eine Wohnfläche von ca. 70 m2.
Die Highlights dieser schönen Wohnung zusammengefasst:
- ca. 70 qm Wohnfläche
- Küche...
Ausstattung
Die Zimmeraufteilung der Wohnung ist gut und praktisch gestaltet:
Der Flur bietet Ihnen Platz für eine Garderobe. Vom Flur aus haben Sie Zugang zu allen Räumen:
Dem Tageslichtbadezimmer mit WC, Waschtisch und Badewanne, dem Schlafzimmer sowie zum Kinderzimmer/Büro, dem hellen, großen Wohnzimmer mit Balkon sowie...
Preisinformation
1 Stellplatz
Weitere Informationen
Sonstiges
Der Kaufpreis für diese schöne Wohnung inkl. Stellplatz beträgt 195.000,- €
Wir freuen uns über Ihre Anfrage und stehen Ihnen zur Vereinbarung eines Besichtigungstermins gerne jederzeit zur Verfügung.
---
Verpassen Sie keine Immobilie mehr!
Unser komplettes Immobilienangebot finden Sie immer...
Anbieter der Immobilie
RE/MAX Lörrach, Müllheim, Freiburg
Tumringer Straße 284, 79539 Lörrach
Online-ID: 2lr8k5t
Referenznummer: 1067-659-1-KM
Finde Angebote wie dieses
Hier geht es zu unserem Impressum, den Allgemeinen Geschäftsbedingungen, den Hinweisen zum Datenschutz und nutzungsbasierter Online-Werbung.