

CITIGRUND Immobilien GmbH
Frau Sara Harms
004 ···
Nr. anzeigenPreise & Kosten
Provision für Käufer
provisionsfrei
Lage
Beliebte und sehr ruhige Wohnlage von Forstenried an der Schnittstelle zu Solln, umgeben von modernen Einfamilien-/Doppelhäusern und kleineren, gepflegten Wohnanlagen. Das Neubauensemble liegt nahe des dörflich geprägte Ortskerns von Forstenried, der noch heute von der langen Historie des Viertels zeugt. Dank der sehr guten...
Die Wohnung
Wohnungslage
Erdgeschoss
Bezug
nach Fertigstellung
Wohnanlage
Energie & Heizung
Warum sehe ich diese Anzeige? – Du siehst diese Anzeige basierend auf Ihrer Navigation auf unserer Website und den Suchkriterien, die du verwendet hast.
Weitere Energiedaten
Energieträger
Gas
Heizungsart
Fußbodenheizung, Zentralheizung
Details
Objektbeschreibung
Eine gelungene Symbiose aus Urbanität und Gemütlichkeit - Herzlich Willkommen in Forstenried!
Inmitten von Forstenried entstehen derzeit fünf stilvolle Mehrfamilienhäuser, die sich allesamt im eleganten Villenstil präsentieren und ein hohes Maß an Exklusivität ausstrahlen werden. Die Baukörper wurden auf dem ca. 3.222...
Ausstattung
ECKDATEN:
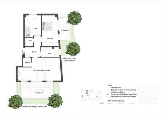
.Ca. 82,58 m² Wohnfläche
.Drei geräumige Zimmer
.Moderne, zeitgemäße Ausstattung
.Erholsame Gartenterrassen in Süd- und Ost-Ausrichtung
AUSZUG AUSSTATTUNGSDETAILS:
.Helle Räume durch viele bodentiefe Fenster mit 3-fach-Verglasung
.Elektrische Rollläden für optimalen...
Weitere Informationen
Stichworte
Anzahl Terrassen: 1, 3 Etagen
Anbieter der Immobilie

Online-ID: 2lrdf5f
Referenznummer: 16652
Finde Angebote wie dieses
Weitere Immobilien
Hier geht es zu unserem Impressum, den Allgemeinen Geschäftsbedingungen, den Hinweisen zum Datenschutz und nutzungsbasierter Online-Werbung.