
HausHirsch GmbH
Herr Alexander Zorin
491 ···
Nr. anzeigenPreise & Kosten
Provision für Käufer
3,57%
Die angegebene Käuferprovision (inkl. MwSt.) ist verdient und fällig mit Beurkundung des notariellen Kaufvertrages.
Lage
Willkommen in Lichterfelde, einem historisch geprägten Stadtteil im Südwesten von Berlin. Die ruhigen Straßen, gepflegten Grünanlagen und die gut erhaltene Architektur machen Lichterfelde zu einem beliebten Wohnviertel für Familien und Naturliebhaber.
In unmittelbarer Nähe Ihrer neuen Immobilie finden Sie alles für...
Das Haus
Kategorie
Stadthaus
Baujahr
2026
Bezug
Ende 2026
Energie & Heizung
Warum sehe ich diese Anzeige? – Du siehst diese Anzeige basierend auf Ihrer Navigation auf unserer Website und den Suchkriterien, die du verwendet hast.
Energieausweis: für diesen Gebäudetyp nicht notwendig
Weitere Energiedaten
Heizungsart
Fußbodenheizung, Luft-/Wasser-Wärmepumpe
Details
Objektbeschreibung
Willkommen in Ihrem neuen Zuhause! Dieses exklusive Townhouse bietet eine hochwertige Ausstattung und großzügiges Wohnen für Ihre Familie. Die modernen Elemente harmonieren perfekt mit dem klassischen Design, und die raumhohen Fenster lassen viel Licht in die Räume. Genießen Sie die offene Wohnküche mit hochwertigen Geräten...
Ausstattung
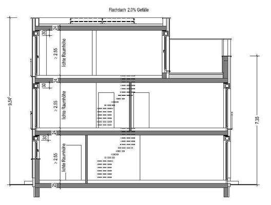
Willkommen in diesem beeindruckenden Stadthaus auf drei Etagen mit insgesamt 172 m² Wohn- und Nutzfläche. Treten Sie ein in den offenen Wohnbereich im Erdgeschoss, der mit einer modernen Küche, einem gemütlichen Essbereich und genügend Platz für eine Couchecke beeindruckt. Von hier aus gelangen Sie direkt auf die Terrasse und...
Preisinformation
1 Carportplatz
Weitere Informationen
Sonstiges
*Baubeginn im Frühjahr 2026*
HausHirsch Exklusiv - Inserate - https://haushirsch.de/immobilien/
Stichworte
Carport vorhanden, Nutzfläche: 58,73 m², Anzahl der Schlafzimmer: 4, Anzahl der Badezimmer: 2, Anzahl Balkone: 1, Bundesland: Berlin, 2 Etagen
Anbieter der Immobilie
Online-ID: 2lrkk5u
Referenznummer: HA2527283
Finde Angebote wie dieses
Hier geht es zu unserem Impressum, den Allgemeinen Geschäftsbedingungen, den Hinweisen zum Datenschutz und nutzungsbasierter Online-Werbung.