
Sparda Immobilien GmbH
Herr Sven Andrikanis
004 ···
Nr. anzeigenPreise & Kosten
Provision für Käufer
3,57 % inkl. MwSt.
Lage
Der Stadtteil Sülldorf grenzt im Westen an Rissen, im Osten an Iserbrook, im Süden an Blankenese und im Norden an Schenefeld im Kreis Pinneberg in Schleswig-Holstein. Mit knapp 9.000 Einwohnern auf einer Fläche von rund sechs Quadratkilometern ist Sülldorf eingebettet in weite Natur, landwirtschaftliche Nutzflächen und Wälder...
Die Wohnung
Derzeitige Nutzung
vermietet
Wohnanlage
Energie & Heizung
Warum sehe ich diese Anzeige? – Du siehst diese Anzeige basierend auf Ihrer Navigation auf unserer Website und den Suchkriterien, die du verwendet hast.
Energieausweistyp
Verbrauchsausweis
Gebäudetyp
Wohngebäude
Wesentliche Energieträger
GAS
Gültigkeit
bis 26.08.2035
Effizienzklasse
D
Endenergieverbrauch
109,60 kWh/(m²·a)
Weitere Energiedaten
Energieträger
Gas
Heizungsart
Zentralheizung
Details
Objektbeschreibung
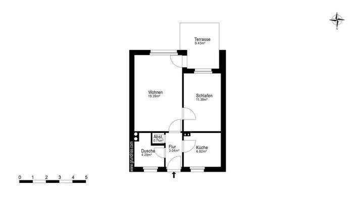
Diese gepflegte 2-Zimmer-Wohnung befindet sich im Erdgeschoss eines Mehrfamilienhauses aus dem Jahr 1985 und bietet eine attraktive Gelegenheit für Kapitalanleger. Die Wohnung ist langfristig und zuverlässig vermietet und erwirtschaftet stabile Mieteinnahmen.
Mit einer Wohnfläche von ca. 48 m² und einer durchdachten...
Ausstattung
Fenster:
doppelverglaste Kunststofffenster
Bodenbeläge:
Fliesen, Laminat
Küche:
Einbauküche inkl. Elektrogeräte
Bad:
weißgefliestes Duschbad
Besonderheiten:
Erdgeschoss, Terrasse, vermietet
Preisinformation
Ist-Mieteinnahmen pro Jahr: 7.080,00 EUR
Weitere Informationen
Stichworte
vermietbare Fläche: 47,50 m², Anzahl Terrassen: 1
Anbieter der Immobilie
Sparda Immobilien GmbH
Beim Strohhause 27, 20097 Hamburg
Online-ID: 2lrll5m
Referenznummer: AND_0039
Finde Angebote wie dieses
Hier geht es zu unserem Impressum, den Allgemeinen Geschäftsbedingungen, den Hinweisen zum Datenschutz und nutzungsbasierter Online-Werbung.