

RÖTHIG & RÖTHIG - REM Real Estate Management GmbH &Co.KG
Herr Thomas Röthig
089 ···
Nr. anzeigenPreise & Kosten
Provision für Käufer
siehe sonstige Angaben.
Lage
Die Immobilie befindet sich in der Gemeinde Kranzberg im oberbayerischen Landkreis Freising, inmitten einer landschaftlich reizvollen Umgebung, die durch ihre Ruhe und Naturnähe besticht. Das Wohnumfeld ist geprägt von einer Bebauung mit überwiegend Ein- und Zweifamilienhäusern und eignet sich hervorragend für Familien...
Das Haus
Kategorie
Einfamilienhaus
Baujahr
2011
Energie & Heizung
Warum sehe ich diese Anzeige? – Du siehst diese Anzeige basierend auf Ihrer Navigation auf unserer Website und den Suchkriterien, die du verwendet hast.
Energieausweistyp
Bedarfsausweis
Gebäudetyp
Wohngebäude
Baujahr laut Energieausweis
2011
Wesentliche Energieträger
FLUESSIGGAS
Gültigkeit
11.09.2016 bis 10.09.2026
Effizienzklasse
B
Endenergiebedarf
62,00 kWh/(m²·a)
Weitere Energiedaten
Energieträger
Elektro, Gas, Solar
Heizungsart
Fußbodenheizung, Zentralheizung
Details
Objektbeschreibung
Wir freuen uns, Ihnen dieses exklusive Villenanwesen in ruhiger und familienfreundlicher Lage nahe Freising im Original RÖTHIG & RÖTHIG Bieterverfahren präsentieren zu dürfen.
Das freistehende Einfamilienhaus mit separat zugänglicher Einliegerwohnung wurde 2011/2012 erbaut und überzeugt durch luxuriöse, hochwertige...
Ausstattung
HIGHLIGHTS IM ÜBERBLICK
+ liebevoll gestaltetes Grundstück mit ca. 570 m²
+ auf Wunsch kann das angrenzende Baugrundstück zusätzlich erworben werden
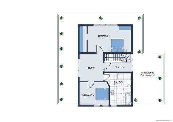
+ ca. 339 m² Wohnfläche zuzüglich ca. 150 m² Nutzfläche
+ exklusive Ausstattung mit luxuriösem Echtholzparkett aus Kirschbaum, übergroßen, schreinergefertigten...
Weitere Informationen
Sonstiges
Es liegt ein Energiebedarfsausweis vor.
Dieser ist gültig bis 10.9.2026.
Endenergiebedarf beträgt 62.00 kwh/(m²*a).
Wesentlicher Energieträger der Heizung ist Flüssiggas.
Das Baujahr des Objekts lt. Energieausweis ist 2011.
Die Energieeffizienzklasse ist B.
Bei diesem Objekt ist nicht...
Online-ID: 2lrmh5z
Referenznummer: LS-4107
Finde Angebote wie dieses
Hier geht es zu unserem Impressum, den Allgemeinen Geschäftsbedingungen, den Hinweisen zum Datenschutz und nutzungsbasierter Online-Werbung.