
Immobilien- & Hausverwaltung Lessmann
Firma Nadine Wenzel
091 ···
Nr. anzeigenPreise & Kosten
Kaution
3843
Warum sehe ich diese Anzeige? – Du siehst diese Anzeige basierend auf Ihrer Navigation auf unserer Website und den Suchkriterien, die du verwendet hast.
Lage
Der La Garde Komplex befindet sich in einer attraktiven und
ruhigen Wohngegend in Bamberg, einer Stadt, die fu¨r ihre
historische Altstadt und ihr reiches kulturelles Erbe bekannt ist.
Die Lorenz-Krapp-Straße liegt in unmittelbarer Nähe zu
zahlreichen Annehmlichkeiten, die das tägliche Leben
erleichtern.
In...
Die Wohnung
Kategorie
Terrassenwohnung
Wohnungslage
Erdgeschoss
Bezug
ab sofort
Derzeitige Nutzung
frei
Wohnanlage
Energie & Heizung
Warum sehe ich diese Anzeige? – Du siehst diese Anzeige basierend auf Ihrer Navigation auf unserer Website und den Suchkriterien, die du verwendet hast.
Energieausweistyp
Bedarfsausweis
Gebäudetyp
Wohngebäude
Weitere Energiedaten
Energieträger
Fernwärme
Heizungsart
Fußbodenheizung
Details
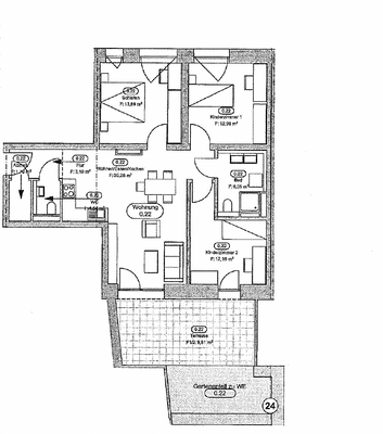
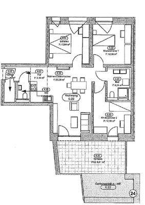
Objektbeschreibung
Diese gepflegte 4-Zimmer-Erdgeschosswohnung bietet auf ca.
91,50m² ein durchdachtes Raumkonzept mit heller
Wohnatmosphäre. Das Highlight ist die großzu¨gige Terrasse mit
angrenzendem, kleinen Garten – ideal zum Entspannen oder fu¨r
Familien mit Kindern.
Ausstattung
Die Ausstattung dieser Gartenwohnung steht fu¨r zeitgemäßen
Wohnkomfort auf gehobenem Niveau:
• Erstbezug
• Terrasse mit angrenzendem Gartenbereich zur alleinigen
Nutzung
• Hochwertiges Bad mit bodengleicher Dusche und modernen
Wand- & Bodenfliesen
• Vinylboden in edler Echtholzoptik – langlebig und...
Weitere Informationen
Sonstiges
Haben Sie Interesse an unserer hochwertigen Wohnung auf dem
La Garde Gelände in Bamberg?
Kontaktieren Sie uns gerne unter info@ihv-lessmann.de um
weitere Informationen zu erhalten.
Wir freuen uns auf Ihre Nachricht und stehen Ihnen bei Fragen
gerne zur Verfu¨gung!
Immobilien- und Hausverwaltung...
Anbieter der Immobilie
Online-ID: 2lrmk5d
Referenznummer: IHV-G-WHG22-AK
Finde Angebote wie dieses
Hier geht es zu unserem Impressum, den Allgemeinen Geschäftsbedingungen, den Hinweisen zum Datenschutz und nutzungsbasierter Online-Werbung.