
Raiffeisen Immobilien Vermittlung GmbH
Frau Eveline Kamper
+43 ···
Nr. anzeigenPreise & Kosten
Provision für Käufer
3% des Kaufpreises plus 20% USt.
Lage
Bad Fischau-Brunn liegt im Industrieviertel in Niederösterreich etwa 50 km südlich von Wien am Rand des Wiener Becken und ist eine Marktgemeinde mit 3302 Einwohnern.Hier können Sie baden wie zu Kaisers Zeiten: Die Tradition der k&k Bäderkultur sorgt im Fischauer Thermalbad für ein einzigartiges Flair. Im Mittelpunkt...
Das Haus
Kategorie
Einfamilienhaus
Baujahr
2024
Bezug
Nach Vereinbarung
Energie & Heizung
Warum sehe ich diese Anzeige? – Du siehst diese Anzeige basierend auf Ihrer Navigation auf unserer Website und den Suchkriterien, die du verwendet hast.
Heizwärmebedarf (HWB)
22,50 kWh/(m²·a)
Gesamtenergieeffizienz (fGEE)
0,52
Weitere Energiedaten
Heizungsart
Fußbodenheizung, Luft-/Wasser-Wärmepumpe
Details
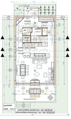
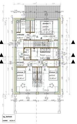
Objektbeschreibung
einzigartig - exklusiv - elegant
Ein moderner Wohntraum, vom Architekten geplant und bis ins Detail durchdacht.Nach Süden ausgerichtet, ein ebener Garten und eine vorgesetzte Terrasse mit Überdachung und Umgrenzung wird dieser Massivbau schlüsselfertig errichtet.
Die Zufahrt erfolgt über eine Brücke, der Zufahrtsweg...
Preisinformation
2 Carportplätze
Weitere Informationen
Stichworte
Anzahl der Schlafzimmer: 4, Anzahl der Badezimmer: 1, Anzahl der separaten WCs: 2, Anzahl Terrassen: 1, Gartenfläche: 272,23 m², Bundesland: Niederösterreich, 3 Etagen
Anbieter der Immobilie
Online-ID: 2lrnc5e
Referenznummer: 0001008767
Finde Angebote wie dieses
Günstige Immobilienfinanzierung einfach online berechnen
Persönliches Angebot berechnenWarum sehe ich diese Werbung? – Du siehst diese Werbung basierend auf Deiner Navigation auf unserer Website und der von Dir verwendeten Suchkriterien.
Diese Werbung wird bezahlt von durchblicker
Werbung melden
Hier geht es zu unserem Impressum, den Allgemeinen Geschäftsbedingungen, den Hinweisen zum Datenschutz und nutzungsbasierter Online-Werbung.