

ImmoGlück by Gerd Fornefeld
Herr Gerd Fornefeld
052 ···
Nr. anzeigenPreise & Kosten
Provision für Käufer
3,57 % inkl. MwSt. vom beurkundeten Kaufpreis
Lage
Unser Objekt steht in Altenbeken in einer sehr ruhigen Wohnsiedlung oberhalb des nicht weit entfernten Ortskern. Aufgrund der Hanglage haben Sie einen tollen Fernblick von den zwei Balkonen aus über den Ort.
Die im Kreis Paderborn gelegene Gemeinde Altenbeken hat zusammen mit den zwei Ortsteilen Buke und Schwaney ca...
Das Haus
Kategorie
Einfamilienhaus
Baujahr
1973
Bezug
01.02.2026
Energie & Heizung
Warum sehe ich diese Anzeige? – Du siehst diese Anzeige basierend auf Ihrer Navigation auf unserer Website und den Suchkriterien, die du verwendet hast.
Energieausweistyp
Bedarfsausweis
Gebäudetyp
Wohngebäude
Baujahr laut Energieausweis
1973
Wesentliche Energieträger
ErdgasE, Stückholz
Gültigkeit
14.07.2025 bis 13.07.2035
Effizienzklasse
E
Endenergiebedarf
140,40 kWh/(m²·a)
Weitere Energiedaten
Energieträger
Gas, Holz
Heizungsart
offener Kamin, Zentralheizung
Details
Objektbeschreibung
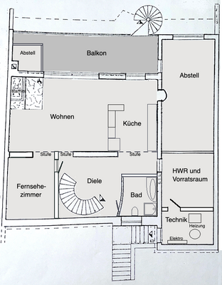
Dieses Einfamilienhaus bietet nicht nur viel Platz für eine Familie, sondern darüber hinaus noch Räumlichkeiten für Hobby und Garten. Zudem gibt es mehrere, nicht als Wohnfläche nutzbare Räume, die als Lager- oder Abstellräume genutzt werden können.
Aufgrund der an die Hanglage ausgerichteten Bauweise erstreckt sich...
Weitere Informationen
Die Angaben und Informationen zum Objekt basieren auf den zur Verfügung gestellten Unterlagen und den Aussagen der Eigentümerin. Die Angaben zur Wohnfläche, zur Nutzfläche und zur Aufteilung der Wohn- /Nutzfläche sind von uns nicht durch ein eigenes Aufmaß ermittelt oder geprüft worden. Eine Haftung hinsichtlich der...
Dokumente
Anbieter der Immobilie

Online-ID: 2lrq35h
Referenznummer: Berg-6
Finde Angebote wie dieses
Hier geht es zu unserem Impressum, den Allgemeinen Geschäftsbedingungen, den Hinweisen zum Datenschutz und nutzungsbasierter Online-Werbung.