
BEST PLACE Immobilien GmbH & Co. KG
Ihr Best Place Vertriebsteam
004 ···
Nr. anzeigenDieses Angebot ist Teil des Neubauprojekts
Karls Gärten
Preise & Kosten
Provision für Käufer
provisionsfrei
Lage
Hier, im südlichen Teil von Karlsfeld, erwartet Sie ein beschauliches Umfeld mit älteren und neueren Wohnhäusern auf großen, gepflegten Grundstücken. Stets sind es nur wenige Gehminuten bis zum geschützten Wander-, Spazier- und Radweg entlang des Würmkanals. Hohe Bäume spenden angenehmen Schatten und schaffen in den...
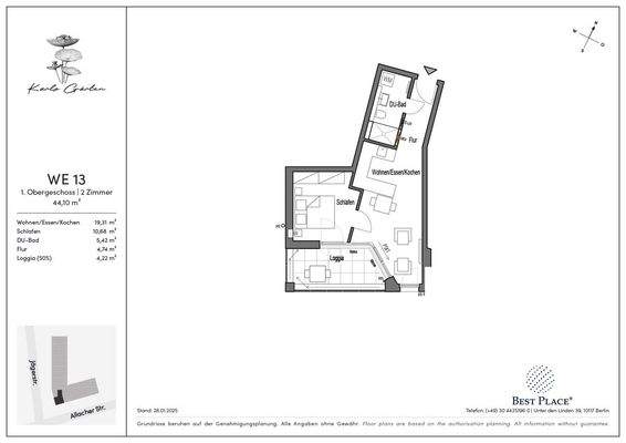
Die Wohnung
Wohnungslage
1. Geschoss
Bezug
31.08.2027
Wohnanlage
Das Neubauprojekt
Energie & Heizung
Warum sehe ich diese Anzeige? – Du siehst diese Anzeige basierend auf Ihrer Navigation auf unserer Website und den Suchkriterien, die du verwendet hast.
Energieausweistyp
Bedarfsausweis
Gebäudetyp
Wohngebäude
Baujahr laut Energieausweis
2024
Wesentliche Energieträger
FERN
Gültigkeit
bis 22.11.2033
Effizienzklasse
B
Endenergiebedarf
60,30 kWh/(m²·a)
Weitere Energiedaten
Energieträger
Fernwärme
Details
Objektbeschreibung
In den klimafreundlichen "Karls Gärten" erwartet Sie eine hochwertige 2-Zimmer-Neubauwohnung, die sich ideal für Kapitalanleger eignet. Die moderne Einheit überzeugt durch eine effiziente Grundrissgestaltung, eine sonnige Süd-West-Loggia mit Faltverglasung und zahlreiche Ausstattungsdetails wie bodentiefe Fenster, Parkett...
Ausstattung
.Klimafreundlicher Neubau (KfN)
.Effizienzhaus 40
.Gute Ökobilanz & reduzierter CO2-Ausstoss
.10 Jahre Mietgarantie inkl. Vermietungsservice
.Offener Wohn-, Koch- und Essbereich mit Süd-West-Loggia
.Loggia mit Faltverglasung
.Badezimmer mit WM-Anschluss
.Bodengleiche Dusche
.Parkett und...
Weitere Informationen
Sonstiges
Mehr Investitionsvorteil mit der 5 % degressiven AfA!
Nutzen Sie höhere Abschreibungen in den ersten Jahren, senken Sie Ihre Steuerlast und sichern Sie sich mehr Liquidität für neue Investitionen. Jetzt clever profitieren!
Stichworte
Tiefgarage vorhanden, vermietbare Fläche: 44,10 m², Bundesland...
Anbieter der Immobilie
Online-ID: 2lrqu5f
Referenznummer: JAEGER-WE13
Finde Angebote wie dieses
Hier geht es zu unserem Impressum, den Allgemeinen Geschäftsbedingungen, den Hinweisen zum Datenschutz und nutzungsbasierter Online-Werbung.