
DEURA HAUS GmbH
Herr Horst-Rüdiger Uszkoreit
036 ···
Nr. anzeigenPreise & Kosten
Provision für Käufer
Auf den Kauf des Baugrundstückes
Lage
Ein großzügiges Baugrundstück in Erfurt. Im eigenständigen Ortsteil Salomonsborn der Landeshauptstadt Erfurt. Gute Verbindung mit Stadtbuslinie zum Domplatz und zum Erfurter Bahnhof.
Das Haus
Kategorie
Einfamilienhaus
Geschosse
2 Geschosse
Baujahr
2026
Bezug
2026
Energie & Heizung
Warum sehe ich diese Anzeige? – Du siehst diese Anzeige basierend auf Ihrer Navigation auf unserer Website und den Suchkriterien, die du verwendet hast.
Weitere Energiedaten
Haustyp
KfW 55
Energieträger
Solar
Heizungsart
Luft-/Wasser-Wärmepumpe
Details
Objektbeschreibung
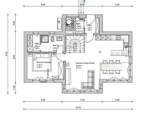
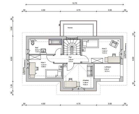
Einfamilienhaus in wohngesunder Holzrahmenbauweise auf einem Baugrundstück in Erfurt-Salomonsborn.
Interessantes Wohnkonzept mit Hauptwohnbereich im EG, offen und lichtdurchflutet mit attraktivem Luftraum vom EG in das OG. Insgesamt 5 Wohnräume.
Schnelle Bauzeit, hervorragende Wohnqualität durch die natürliche...
Anbieter der Immobilie
DEURA HAUS GmbH
Schlüterstraße 12, 99089 Erfurt
Online-ID: 2lrqv5k
Finde Angebote wie dieses
Hier geht es zu unserem Impressum, den Allgemeinen Geschäftsbedingungen, den Hinweisen zum Datenschutz und nutzungsbasierter Online-Werbung.