
Reich Immobilien- und Sachverständigenbüro
Frau Gina und Simone Reich
+49 ···
Nr. anzeigenPreise & Kosten
nicht in Warmmiete enthalten
Provision für Mieter
provisionsfrei
Warum sehe ich diese Anzeige? – Du siehst diese Anzeige basierend auf Ihrer Navigation auf unserer Website und den Suchkriterien, die du verwendet hast.
Lage
Zentrale, stadtnahe Lage. Bis zur Fußgängerzone sind es ca. 400 m. Guter Anschluss an das Bundesfernstraßennetz, die Harzrand-Schnellstraße B 243 ist nur ca. 200 m enfernt.
Das Osteroder Gymnasium, die Hauptschule, die BBS 1 und 2, die Stadthalle, das Aloha Schwimmbad und diverse Einkaufsläden und Restaurants befinden...
Das Objekt
Baujahr
1996
Bezug
sofort
Energie & Heizung
Warum sehe ich diese Anzeige? – Du siehst diese Anzeige basierend auf Ihrer Navigation auf unserer Website und den Suchkriterien, die du verwendet hast.
Weitere Energiedaten
Energieträger
Elektro, Gas
Heizungsart
Zentralheizung
Details
Objektbeschreibung
Diese kleine Einzelhandelsfläche befindet sich im Erdgeschoss eines repräsentativen Einkaufszentrums in der Stadt Osterode am Harz. Parkplätze sind ausreichend vorhanden.
Ausstattung
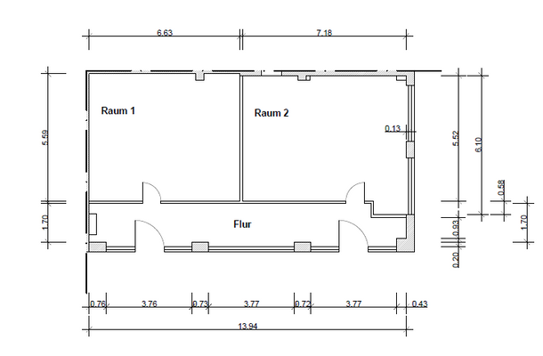
Aufteilung:
Separater Eingang. Ein Flur, welcher in zwei Räume führt.
Weitere Informationen
Sonstiges
Die Nebenkosten betragen 1,65 €/m² und inkludieren Wasser- und Heizkosten. Lediglich die Stromkosten zahlt der Mieter direkt an den Energieversorger.
Hinweis: Alle Angaben sind ohne Gewähr und basieren ausschließlich auf Informationen, die uns von Dritten übermittelt wurden. Für Vollständigkeit, Richtigkeit...
Anbieter der Immobilie
Online-ID: 2lrr55t
Referenznummer: 20251009
Finde Angebote wie dieses
Hier geht es zu unserem Impressum, den Allgemeinen Geschäftsbedingungen, den Hinweisen zum Datenschutz und nutzungsbasierter Online-Werbung.