

Angermann NRW GmbH
Frau Julia Kliber - Industrial & Logistics
022 ···
Nr. anzeigenPreise & Kosten
Provision für Mieter
Bitte beachte, das Angebot beinhaltet bei Vertragsabschluss die Zahlung einer Provision. Weitere Informationen erhältst Du vom Anbieter.
Warum sehe ich diese Anzeige? – Du siehst diese Anzeige basierend auf Ihrer Navigation auf unserer Website und den Suchkriterien, die du verwendet hast.
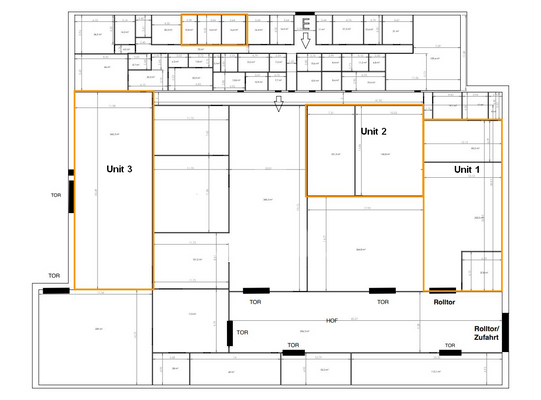
Lage
Gebietsausweisung: Gewerbegebiet (GE)/Industriegebiet (GI)
Die Industriefläche
Bezug
auf Anfrage
Details
Ausstattung
Diese Lagerhalle überzeugt mit solider Ausstattung und flexibler Nutzung. Der Betonboden trägt bis zu 4.000 kg/m² und ist ideal für schwere Lagergüter. Das Dach wurde 2022 saniert, und ein Glasfaseranschluss ist derzeit in der Installation - perfekt für zukunftssichere Kommunikation. Die Immobilie ist komplett beheizbar über...
Anbieter der Immobilie
Angermann NRW GmbH
Josef-Lammerting-Allee 18, 50933 Köln

Online-ID: 2lrss5l
Referenznummer: 4968/G1
Finde Angebote wie dieses
Hier geht es zu unserem Impressum, den Allgemeinen Geschäftsbedingungen, den Hinweisen zum Datenschutz und nutzungsbasierter Online-Werbung.