
Ryck Immobilienverwaltung
Frau Viktoria König
004 ···
Nr. anzeigenPreise & Kosten
Provision für Käufer
3,57 inkl. gesetzl. MwSt.
Lage
Die Immobilie befindet sich in 72406 Bisingen im Ortsteil Steinhofen. Die Lage ist ruhig und zugleich verkehrsgünstig. Einkaufsmöglichkeiten wie ALDI, Rossmann und weitere Geschäfte des täglichen Bedarfs sind in wenigen Minuten erreichbar.
Die Umgebung ist geprägt von gepflegten Wohnhäusern und einer angenehmen...
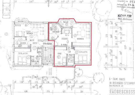
Die Wohnung
Wohnungslage
Erdgeschoss
Wohnanlage
Energie & Heizung
Warum sehe ich diese Anzeige? – Du siehst diese Anzeige basierend auf Ihrer Navigation auf unserer Website und den Suchkriterien, die du verwendet hast.
Energieausweistyp
Verbrauchsausweis
Gebäudetyp
Wohngebäude
Baujahr laut Energieausweis
2009
Wesentliche Energieträger
OEL
Gültigkeit
bis 01.02.2028
Effizienzklasse
D
Endenergieverbrauch
125,17 kWh/(m²·a)
Weitere Energiedaten
Energieträger
Öl
Heizungsart
Zentralheizung
Details
Objektbeschreibung
Diese gepflegte Hochparterrewohnung aus dem Jahr 1989 zeichnet sich durch ihre freundliche Atmosphäre aus. Auf rund 68 m² erwarten Sie drei helle, gut geschnittene Zimmer, eine gemütliche Einbauküche sowie ein gepflegtes Badezimmer.
Der sonnige Balkon lädt zum Entspannen ein und bietet einen schönen Platz, um den...
Ausstattung
- Gepflegte Hochparterrewohnung aus dem Baujahr 1989
- Ca. 68 m² Wohnfläche mit durchdachter Raumaufteilung
- 3 helle Zimmer mit freundlicher Atmosphäre
- Einbauküche im Kaufpreis enthalten
- Tageslichtbad
- Warmwasser über Durchlauferhitzer
- Sonniger Balkon
- PKW-Stellplatz
- Kellerabteil für...
Preisinformation
1 Stellplatz
Weitere Informationen
Sonstiges
Da wir uns bei allen Angaben auf die Informationen Dritter stützen müssen, können wir keine Gewähr für deren Richtigkeit und Vollständigkeit übernehmen.
Bitte haben Sie Verständnis dafür, dass wir nur Anfragen mit vollständiger
Adressangabe und erreichbarer Handynummer bearbeiten können. Nachdem Ihre...
Anbieter der Immobilie
Ryck Immobilienverwaltung
Frauengartenstr. 4, 72379 Hechingen
Online-ID: 2lrst5x
Referenznummer: 47-VK
Finde Angebote wie dieses
Hier geht es zu unserem Impressum, den Allgemeinen Geschäftsbedingungen, den Hinweisen zum Datenschutz und nutzungsbasierter Online-Werbung.