
Eigenheim & Invest
--- ···
Nr. anzeigenPreise & Kosten
Provision für Käufer
7,14 % inkl. gesetzlicher MwSt.
Lage
Das Bauvorhaben befindet sich im nördlichen Berliner Stadtteil Französisch Buchholz, der zum Bezirk Pankow gehört. Die Lage verbindet die Ruhe eines gewachsenen Wohngebiets mit der Nähe zur Berliner Innenstadt. Geprägt von Einfamilien- und Mehrfamilienhäusern sowie viel Grün, bietet die Umgebung ein angenehmes...
Das Renditeobjekt
Details
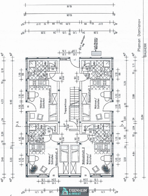
Objektbeschreibung
!!! Hier handelt es sich um die Vermittlung eines Bauvorhabens Typ Fertig Ausbauhaus !!! Angebot für Investoren bis 31.03.2026 gültig !!!
In Berlin-Buch entsteht ein modernes Mehrfamilienhaus, das mit einem durchdachten Konzept überzeugt. Geplant sind zwei Vollgeschosse mit insgesamt acht Einzimmerwohnungen, die mit 22-24...
Weitere Informationen
Sonstiges
Weitere interessante Immobilien finden Sie unter www.eigenheim-invest.de
Suchprofil anlegen:
Sie haben die passende Immobilie noch nicht gefunden? Dann tragen Sie sich als Suchkunde bei uns ein und erhalten frühzeitig neue Immobilienangebote: www.eigenheim-invest.de/immobiliensuche
Für...
Anbieter der Immobilie
Online-ID: 2lrxp5h
Referenznummer: 4188424
Finde Angebote wie dieses
Hier geht es zu unserem Impressum, den Allgemeinen Geschäftsbedingungen, den Hinweisen zum Datenschutz und nutzungsbasierter Online-Werbung.