

ORANGE Immobilienagentur
Herr Robert Güldner
073 ···
Nr. anzeigenPreise & Kosten
Provision für Käufer
3,57 %
Lage
Die kleine baden-württembergische Gemeinde Untermarchtal liegt landschaftlich reizvoll am Fuße der Schwäbischen Alb im Alb-Donau-Kreis in unmittelbarer Nähe zur Donau. nur rund 15 Kilometer von Riedlingen und der großen Kreisstadt Ehingen entfernt und befindet sich in nördlicher Lage zur Region Oberschwaben. Begünstigt durch...
Das Haus
Kategorie
Einfamilienhaus
Energie & Heizung
Warum sehe ich diese Anzeige? – Du siehst diese Anzeige basierend auf Ihrer Navigation auf unserer Website und den Suchkriterien, die du verwendet hast.
Weitere Energiedaten
Haustyp
Massivhaus
Energieträger
Holz
Details
Objektbeschreibung
Sie wohnen derzeit als Mieter in einem Mehrfamilienhaus? Haben weder Terrasse noch Garten und Ihnen fehlt Platz?
Sie möchten nicht mehr um Erlaubnis fragen müssen, was Sie tun dürfen - und Sie möchten keine Miete mehr zahlen? Sie wollen nicht mehr den Blick auf die verbaute Umgebung Ihrer
Wohnung.
Sie denken über...
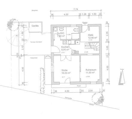
Ausstattung
- Kleine Gewölbeteilunterkellerung
- Gebäude in Mischmauerwerk in Ziegelbau restaurierte
Außenwände.
- Dachstuhl saniert 1990 ausgerichtet neu gedeckt
- EG Saniert - Böden mit neuem Bodenunterbau, innen Vorwandschale an Außenwand mit
Dämmung, sowie komplett neue Installation mit Elektro und...
Weitere Informationen
Sonstiges
Gerne sind wir für weitere Fragen und Informationen unter Tel.: 0731/ 70 80 01 41 erreichbar.
Bei Kauf/Miete verpflichtet sich der Käufer/Mieter an ORANGE Immobilienagentur --PHDREI GmbH, Robert Güldner, selbst. Immobilienmakler, eine Maklerprovision in der angegebenen Höhe nach notariellem Kaufvertrag...
Anbieter der Immobilie
ORANGE Immobilienagentur
Kumpfmühler Str. 59, 93051 Regensburg

Online-ID: 2ls3d58
Referenznummer: 186-KH-RGÜ
Finde Angebote wie dieses
Hier geht es zu unserem Impressum, den Allgemeinen Geschäftsbedingungen, den Hinweisen zum Datenschutz und nutzungsbasierter Online-Werbung.