

DR Immobilien & Partners GmbH
Herr Dennis Richarz
084 ···
Nr. anzeigenPreise & Kosten
zzgl. Nebenkosten
Kaution
4.760,00
Provision für Mieter
1,5 MM (netto)
Warum sehe ich diese Anzeige? – Du siehst diese Anzeige basierend auf Ihrer Navigation auf unserer Website und den Suchkriterien, die du verwendet hast.
Lage
Der Gewerbepark Nord-Ost und der benachbarte InterPark sind zwei Gewerbegebiete östlich von Ingolstadt und im Herzen Bayerns, die sich durch Ihre ausgesprochen gute Mikro- und Makrolage auszeichnen. Diese geografische Mitte Bayerns ist hier für Sie Ausgangspunkt, um in unter 60 Autominuten über die Autobahn A9 oder die...
Büro-/Praxisfläche
Kategorie
Bürofläche
Baujahr
2019
Bezug
nach Vereinbarung
Details
Objektbeschreibung
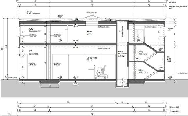
Die Neubau Halle wurde im Sommer 2019 fertiggestellt. Insgesamt bietet sie 1.400 m² Lagerfläche im EG und ebenso 1.400 m² Bürofläche im OG. Die Lagerfläche ist bereits langfristig vermietet. Von der Bürofläche sind noch ca. 1.050 m² verfügbar - Größen und Ausstattungen individuell gestaltbar.
Über einen Treppenaufgang...
Ausstattung
+ noch 1.050 m² Bürofläche verfügbar (Ausbau nach Wunsch, Fenster, Aufsteilung etc.)
+ über 3.000 m² Grundstück, überwiegend gepflastert
+ freundliches Gesamtbild durch ca. 600 m² Grünflächen
+ Halle mit Volldämmung
+ Fußbodenheizung und LED Beleuchtung in der gesamten Lagerhalle
+ Starkstrom bis zu über 70...
Preisinformation
20 Stellplätze
Weitere Informationen
Sonstiges
Die Vermittlung dieser Immobilie erfolgt exklusiv durch DR Immobilien & Partners GmbH. Mit der Anfrage bei und durch Inanspruchnahme der Dienstleistung der Firma DR Immobilien & Partners GmbH, wird ein Maklervertrag geschlossen. Vom Mieter ist eine Vermittlungsprovision in Höhe von 1,785 Monatsmieten...
Anbieter der Immobilie
DR Immobilien & Partners GmbH
Milchstraße 9, 85049 Ingolstadt

Online-ID: 2ls4g5p
Referenznummer: DRI-158525
Finde Angebote wie dieses
Hier geht es zu unserem Impressum, den Allgemeinen Geschäftsbedingungen, den Hinweisen zum Datenschutz und nutzungsbasierter Online-Werbung.