
Evernest GmbH
Markus Gleitz
+49 ···
Nr. anzeigenPreise & Kosten
Provision für Käufer
3.57 inkl. MwSt.
Bei Abschluss eines notariellen Kaufvertrages ist eine Käuferprovision vom Käufer in Höhe von 3.57 % inkl. MwSt. aus dem Kaufpreis fällig.
Lage
Dieses 3 Familienhaus liegt in der Weststadt von Braunschweig - einem vielseitigen und gut angebundenen Stadtteil mit gewachsener Infrastruktur. Schulen, Kindergärten, Einkaufsmöglichkeiten, Ärzte sowie Freizeit- und Sporteinrichtungen befinden sich in direkter Umgebung und machen die Lage besonders familienfreundlich. Die...
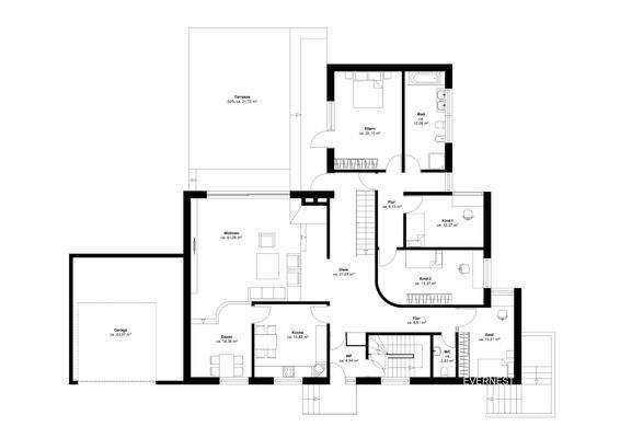
Das Haus
Kategorie
Mehrfamilienhaus
Baujahr
1975
Energie & Heizung
Warum sehe ich diese Anzeige? – Du siehst diese Anzeige basierend auf Ihrer Navigation auf unserer Website und den Suchkriterien, die du verwendet hast.
Energieausweistyp
Verbrauchsausweis
Gebäudetyp
Wohngebäude
Effizienzklasse
F
Endenergieverbrauch
172,00 kWh/(m²·a) - Warmwasser enthalten
Weitere Energiedaten
Energieträger
Gas
Details
Objektbeschreibung
Ein traumhaftes 3-Familienhaus am Naturschutzgebiet in Braunschweig mit zusätzlicher Gewerbefläche im Kellergeschoss und attraktivem Wohnraum, der sich sowohl als renditestarke Kapitalanlage als auch zur Selbstnutzung hervorragend eignet.
Dieses einzigartige Anwesen bietet nicht nur eine idyllische Lage mit Blick ins...
Ausstattung
* Doppelgarage
* Gartenteich
* Alarmanlage
* 2 Mietwohnungen im Obergeschoss
* Einbauküchen
* Kamin
* Fernwärme
* Ruhige Lage
* Keller
* 2 Balkone
Weitere Informationen
Stichworte
Garage vorhanden, Anzahl der Schlafzimmer: 8, Anzahl der Badezimmer: 4, Anzahl der separaten WCs: 1, Anzahl Terrassen: 1, 2 Etagen
Anbieter der Immobilie
Online-ID: 2ls5a5c
Referenznummer: L-BBQN8HR
Finde Angebote wie dieses
Hier geht es zu unserem Impressum, den Allgemeinen Geschäftsbedingungen, den Hinweisen zum Datenschutz und nutzungsbasierter Online-Werbung.