
Immobilien Friedrichsen GmbH & Co. KG
004 ···
Nr. anzeigenPreise & Kosten
Provision für Käufer
3,57 % inkl. MwSt.
Lage
Die Stadt Niebüll, ein staatlich anerkannter Luftkurort mit dem anziehenden Flair einer jungen lebendigen Stadt ist der zentrale Wohnort im nördlichen Nordfriesland mit optimalen Verkehrsanbindungen auf Straße und Schiene. Niebüll ist die touristische Drehscheibe im äußersten Nordwesten der Republik. Von hier aus sind die...
Das Haus
Kategorie
Einfamilienhaus
Baujahr
2017
Bezug
nach Vereinbarung
Derzeitige Nutzung
vermietet
Energie & Heizung
Warum sehe ich diese Anzeige? – Du siehst diese Anzeige basierend auf Ihrer Navigation auf unserer Website und den Suchkriterien, die du verwendet hast.
Energieausweistyp
Verbrauchsausweis
Gebäudetyp
Wohngebäude
Wesentliche Energieträger
LUFTWP
Gültigkeit
bis 03.09.2035
Effizienzklasse
A
Endenergieverbrauch
34,10 kWh/(m²·a)
Weitere Energiedaten
Haustyp
Massivhaus
Heizungsart
Luft-/Wasser-Wärmepumpe
Details
Objektbeschreibung
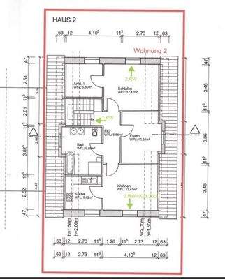
Dieses sehr gepflegte Einfamilien-Kettenhaus wurde im Jahr 2017 erbaut und befindet sich in ruhiger Lage am Stadtrand von Niebüll. Auf einem großzügigen Grundstück von ca. 698 m² bietet die Immobilie eine Gesamtwohnfläche von ca. 136 m², die sich auf zwei separate Wohneinheiten verteilt. Damit eignet sich das Haus sowohl zur...
Ausstattung
- 2 Wohnungen ( Dachgeschosswohnung ist vermietet)
- Erdgeschosswohnung ca. 66,51 m²
- Dachgeschosswohnung ca. 60,71 m²
- gemeinschaftlicher HWR- und Technikraum mit einer Größe von ca. 8,68 m²
- Monatliche Miete der DG-Wohnung 530,00€ zuzüglich 130,00€ Nebenkostenvorauszahlung
- Mögliche Zusammenführung der...
Weitere Informationen
Sonstiges
Wir helfen Ihnen gerne bei der Finanzierung der Immobilie!
Unser Service / Ihre Vorteile:
-Erstellung eines individuellen Finanzierungskonzeptes
-Finanzierungsvorprüfung "Was kann ich mir leisten?"
-Einbindung und Prüfung von Fördermöglichkeiten
- Auswahl einer passenden und günstigen...
Anbieter der Immobilie

Immobilien Friedrichsen GmbH & Co. KG
Online-ID: 2ls7j5j
Referenznummer: 9450
Finde Angebote wie dieses
Hier geht es zu unserem Impressum, den Allgemeinen Geschäftsbedingungen, den Hinweisen zum Datenschutz und nutzungsbasierter Online-Werbung.