

MONACO Generalbau GmbH
Frau Ines Godl
086 ···
Nr. anzeigenPreise & Kosten
Provision für Käufer
provisionsfrei
Lage
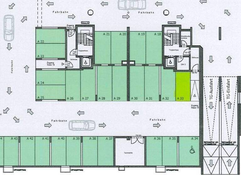
Der Tiefgaragenstellplatz befindet sich in Zorneding, An der Flur 5b.
Garage/Stellplatz
Kategorie
Tiefgaragenstellplatz
Baujahr
2018
Bezug
sofort
Energie & Heizung
Warum sehe ich diese Anzeige? – Du siehst diese Anzeige basierend auf Ihrer Navigation auf unserer Website und den Suchkriterien, die du verwendet hast.
Energieausweis: für diesen Gebäudetyp nicht notwendig
Details
Objektbeschreibung
Dieser geräumige Tiefgaragenstellplatz liegt in einer modernen und gepflegten Tiefgarage, unter einer Wohnanlage, die im Jahr 2018 in Massivbauweise errichtet wurde.
Der Stellplatz ist derzeit vermietet.
Weitere Informationen
Sonstiges
Vielen Dank für Ihr Interesse an diesem KFZ-Tiefgaragenstellplatz.
Melden Sie sich gerne, wenn Sie Interesse an diesem Stellplatz haben und/oder einen Besichtigungstermin wünschen.
Anbieter der Immobilie
MONACO Generalbau GmbH
Isenstraße 4, 84431 Heldenstein

Online-ID: 2ls9a5z
Finde Angebote wie dieses
Hier geht es zu unserem Impressum, den Allgemeinen Geschäftsbedingungen, den Hinweisen zum Datenschutz und nutzungsbasierter Online-Werbung.