
M & E Immobilien GmbH
Herr Emre Karagöz
041 ···
Nr. anzeigenPreise & Kosten
Provision für Käufer
provisionsfrei
Lage
Die Stadt Lauenburg/Elbe liegt im Süden des Kreises Herzogtum Lauenburg an der Elbe im Dreiländereck Schleswig-Holstein, Niedersachsen und Mecklenburg-Vorpommern etwa 40 km südöstlich von Hamburg. Die alte Schifferstadt weist derzeit eine Einwohnerzahl von circa 12.200 aus.
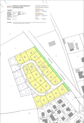
Das Neubaugebiet befindet sich westlich der...
Das Grundstück
Energie & Heizung
Warum sehe ich diese Anzeige? – Du siehst diese Anzeige basierend auf Ihrer Navigation auf unserer Website und den Suchkriterien, die du verwendet hast.
Energieausweis: für diesen Gebäudetyp nicht notwendig
Details
Objektbeschreibung
Es handelt sich um die Erschließung von 27 und den Verkauf von 22 Baugrundstücken für Einzel- und Doppelhäuser.
Die Grundstücksgrößen liegen zwischen 525 m² und 722 m².
Die Kaufpreise beginnen ab 153.825 € und variieren mit der jeweiligen Grundstücksgröße.
Die Erschließungsarbeiten sind fertiggestellt...
Anbieter der Immobilie
M & E Immobilien GmbH
Büchener Weg 2, 21481 Lauenburg
Online-ID: 2lsab5t
Finde Angebote wie dieses
Hier geht es zu unserem Impressum, den Allgemeinen Geschäftsbedingungen, den Hinweisen zum Datenschutz und nutzungsbasierter Online-Werbung.