
Evernest GmbH
Patrick Stark
+49 ···
Nr. anzeigenPreise & Kosten
Provision für Käufer
2.98 inkl. MwSt.
Bei Abschluss eines notariellen Kaufvertrages ist eine Käuferprovision vom Käufer in Höhe von 2.98 % inkl. MwSt. aus dem Kaufpreis fällig.
Lage
Eingebettet in eine ruhige, gewachsene Wohnlage im begehrten Stadtteil Bergisch Gladbach-Nußbaum, steht dieses Anwesen für eine seltene Verbindung aus naturnaher Umgebung, urbaner Nähe und familiärer Geborgenheit. Die Umgebung ist geprägt von gepflegten Einfamilienhäusern, altem Baumbestand und einer nachbarschaftlich...
Das Haus
Kategorie
Einfamilienhaus
Baujahr
2020
Energie & Heizung
Warum sehe ich diese Anzeige? – Du siehst diese Anzeige basierend auf Ihrer Navigation auf unserer Website und den Suchkriterien, die du verwendet hast.
Energieausweistyp
Bedarfsausweis
Gebäudetyp
Wohngebäude
Effizienzklasse
A+
Endenergiebedarf
26,20 kWh/(m²·a)
Weitere Energiedaten
Energieträger
Elektro
Details
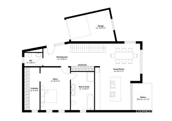
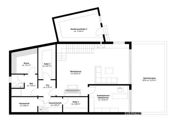
Objektbeschreibung
In einer ruhigen Höhenlage von Bergisch Gladbach-Nußbaum, umgeben von stilvoller Nachbarschaft und eingebettet in grüne Strukturen, präsentiert sich dieses moderne Einfamilienhaus als perfekte Symbiose aus Design, Technik und Lebensqualität. 2020 in massiver Bauweise errichtet, bietet das Haus auf ca. 276m² Wohnfläche und...
Ausstattung
Ausstattungsmerkmale, die begeistern
- Grundstücksfläche: ca. 855m²
- Wohnfläche: ca. 276,48m²
- Gehoben ausgebaute Nutzflächen: ca. 58,86m²
- Zimmeranzahl: 6
- Schlafzimmer: bis zu 4
- Badezimmer: 3
- Energieeffizienzklasse A+, Endenergiebedarf 26,2 kWh/(m²·a)
- Fertigstellung & Erstbezug...
Weitere Informationen
Stichworte
Stellplatz vorhanden, Nutzfläche: 58,86 m², Anzahl der Schlafzimmer: 4, Anzahl der Badezimmer: 3, Anzahl der separaten WCs: 1, Anzahl Terrassen: 1, 3 Etagen
Anbieter der Immobilie
Online-ID: 2lsdl5q
Referenznummer: L-DQTBHKY
Finde Angebote wie dieses
Hier geht es zu unserem Impressum, den Allgemeinen Geschäftsbedingungen, den Hinweisen zum Datenschutz und nutzungsbasierter Online-Werbung.