
HOMANN IMMOBILIEN Münster GMBH
Frau Nicole Mönnig
004 ···
Nr. anzeigenPreise & Kosten
Provision für Käufer
4,76%
Lage
Dieses interessante Immobilienangebot befindet sich in einer bevorzugten Wohnlage im Osten von Münster-Hiltrup, in nur 500m Entfernung zum Kanal, im Emmerbachtal. Als "Stadt in der Stadt" bietet der Ortsteil Hiltrup vielfältige Einkaufsmöglichkeiten und liegt dennoch nur wenige Kilometer von der Münsteraner Innenstadt...
Das Haus
Kategorie
Mehrfamilienhaus
Baujahr
1980
Derzeitige Nutzung
vermietet
Energie & Heizung
Warum sehe ich diese Anzeige? – Du siehst diese Anzeige basierend auf Ihrer Navigation auf unserer Website und den Suchkriterien, die du verwendet hast.
Weitere Energiedaten
Energieträger
Gas
Heizungsart
Zentralheizung
Details
Objektbeschreibung
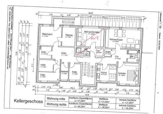
Das 1980 erbaute Mehrfamilienhaus umfasst insgesamt neun Wohneinheiten mit einer Wohnfläche von rund 422 m². Vier Wohnungen verfügen über einen Balkon, fünf weitere sind als Apartments gestaltet. Den Bewohnern stehen drei Stellplätze zur Verfügung.
Das Gebäude befindet sich in einem gepflegten Gesamtzustand und wurde...
Ausstattung
Wohnfläche wie folgt aufgeteilt:
EG: li 61,41m²/ 540,70€, re 61,41m²/540,73€, mi 22,07m²/266,14€
I. OG: li 61,41m²/550,36€, re 61,41m²/538,73€, mi 22,07m²/275,00€
DG: li 46,46m²/450,00€, re 47,10m²/460,00€
KG: 1 x 46,53m²/476,00€
Jahresnettokaltmiete beträgt insgesamt...
Preisinformation
3 Stellplätze
Weitere Informationen
Sonstiges
Bitte haben Sie Verständnis, dass ich nur komplett ausgefüllte Anfragen einschließlich Ihrer Adresse und einer Telefon-Nummer beantworten kann.
Ihre Ansprechpartnerin:
Nicole Mönnig
Prokuristin, Bankkauffrau
Festnetz: 0251 - 418 4822
Mobil: 0172 - 522 7283
Email:...
Anbieter der Immobilie
Online-ID: 2lse85u
Referenznummer: 2687
Finde Angebote wie dieses
Hier geht es zu unserem Impressum, den Allgemeinen Geschäftsbedingungen, den Hinweisen zum Datenschutz und nutzungsbasierter Online-Werbung.