
IMMOFUX ® Immobilienservice
Herr Björn Gauger
+49 ···
Nr. anzeigenPreise & Kosten
Provision für Käufer
provisionsfrei
Lage
Die Gemeinde Warnow hat ca. 630 Einwohner und liegt am Santower See im Landkreis Nordwestmecklenburg in Mecklenburg-Vorpommern. Die Ostsee am Wohlenberger Wiek ist rund 8 Kilometer entfernt. Die Entfernung zur Kreisstadt Grevesmühlen beträgt etwa 7 Kilometer und zur Hansestadt Wismar sind es etwa 23 Kilometer. Das...
Das Haus
Kategorie
Bungalow
Baujahr
2023
Bezug
nach Vereinbarung
Energie & Heizung
Warum sehe ich diese Anzeige? – Du siehst diese Anzeige basierend auf Ihrer Navigation auf unserer Website und den Suchkriterien, die du verwendet hast.
Energieausweistyp
Bedarfsausweis
Gebäudetyp
Wohngebäude
Wesentliche Energieträger
PELLET
Effizienzklasse
A+
Endenergiebedarf
29,00 kWh/(m²·a)
Weitere Energiedaten
Energieträger
Pellets
Heizungsart
Luft-/Wasser-Wärmepumpe, offener Kamin, Zentralheizung
Details
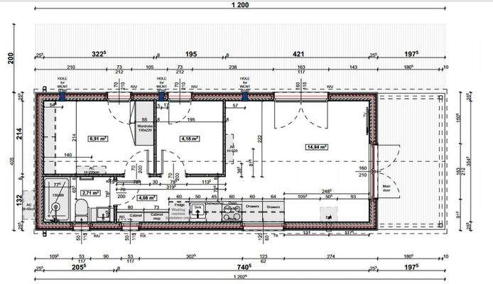
Objektbeschreibung
Der baugenehmigungsfähige Bungalow erfüllt den Effizienzhaus 55 Standard (EH-55) nach dem Gebäudeenergiegesetz (GEG vormals EnEV) und hat aus statischen Gründen einen hochfesten Sicherheits-Stahlrahmen und ist ein vollwertiges Haus mit ganz normalen Versorgungsleitungen für Strom, Wasser und Abwasser und kann...
Ausstattung
Komplett ausgestattetes und vollwertiges EH55 Effizienz Minihaus auf Baugrundstück, massiver Trailer mit Sicherheitsstahlrahmen, hochwertige Echtholz-Außenfassade, Satteldach aus Stahlblech in Stehpfalz matt, Dachrinnen und Fallrohre aus Metall, energiesparende Ganzjahres-PUR-Dämmung (Wände, Fußboden und Decke), elektronisch...
Weitere Informationen
Sonstiges
Der Angebotspreis bezieht sich auf das Baugrundstück sowie den EH55 Bungalow laut Bau- und Leistungsbeschreibung. Alle erforderlichen Anschlüsse für Strom, Wasser und Abwasser liegen am Grundstück an.
Die Fotos und Abbildungen zeigen teilweise Sonderleistungen. Für Käufer fällt keine zusätzliche...
Anbieter der Immobilie
Online-ID: 2lsef5w
Referenznummer: BG382859
Finde Angebote wie dieses
Hier geht es zu unserem Impressum, den Allgemeinen Geschäftsbedingungen, den Hinweisen zum Datenschutz und nutzungsbasierter Online-Werbung.