
ohne-makler.net - Immobilien selbst vermarkten
Angebot von U. Müller, W. Baulig
Kontaktiere den Anbieter schriftlich, es ist keine Telefonnummer hinterlegt.
Preise & Kosten
Provision für Käufer
provisionsfrei
Lage
Großräumige Lage
Bundesland: Rheinland-Pfalz
Kreis: Neuwied
Ort und Einwohnerzahl: Hausen, ca 1900 Einwohner
Hausen (Wied) ist eine Ortsgemeinde im Landkreis Neuwied im Norden von Rheinland-Pfalz. Sie gehört der Verbandsgemeinde Rengsdorf-Waldbreitbach an. Hausen ist ein staatlich anerkannter Luftkurort.
Der...
Das Haus
Kategorie
Mehrfamilienhaus
Baujahr
1962
Bezug
nach Absprache
Derzeitige Nutzung
vermietet
Energie & Heizung
Warum sehe ich diese Anzeige? – Du siehst diese Anzeige basierend auf Ihrer Navigation auf unserer Website und den Suchkriterien, die du verwendet hast.
Energieausweistyp
Bedarfsausweis
Gebäudetyp
Wohngebäude
Effizienzklasse
G
Endenergiebedarf
212,00 kWh/(m²·a)
Weitere Energiedaten
Energieträger
Gas
Heizungsart
Etagenheizung
Details
Objektbeschreibung
Zum Kauf angeboten wird ein umfassend modernisiertes Dreifamilienhaus in der Ortsgemeinde Hausen. Das freistehende Objekt befindet sich in einer ruhigen Seitenstraße - Bushaltestelle, Kindergarten, Schule, Schwimmbad, Aldi-Markt und Bäckerei sind fußläufig zu erreichen. Die aktuell mögliche Kombination aus Selbstnutzung und...
Ausstattung
Balkon, Garten, Keller, Laminat, Fliesen
Bemerkungen:
Beschreibung der Gebäude und Außenanlagen
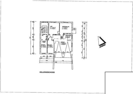
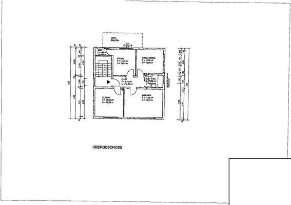
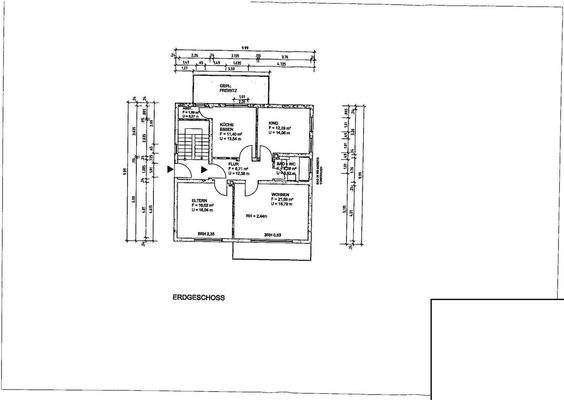
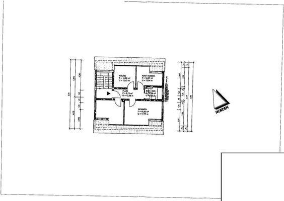
Gebäudeart: Mehrfamilienwohnhaus; zweigeschossig; unterkellert; ausgebautes Dachgeschoss;
Freistehend, Baujahr: ca. 1962
Modernisierung: 2016/2017 umfassend renoviert und modernisiert:
Bäder erneuert...
Preisinformation
3 Stellplätze
2 Garagenstellplätze
Weitere Informationen
Sonstiges
Heizungsart: Etagenheizung
Energieträger: Gas
Makleranfragen nicht erwünscht. Nach § 7 UWG sind unaufgeforderte Kontaktaufnahmen durch Makler ohne ausdrückliche Einwilligung des Empfängers verboten!
ohne-makler (OM) ist weder Anbieter noch Vermittler der Immobilie. OM betreibt eine Plattform...
Anbieter der Immobilie
ohne-makler.net - Immobilien selbst vermarkten
Humboldtstr. 25 A, 21509 Glinde
Angebot von U. Müller, W. Baulig
Dein Ansprechpartner
Kontaktiere den Anbieter schriftlich, es ist keine Telefonnummer hinterlegt.
Online-ID: 2lsfl5x
Referenznummer: 400720
Finde Angebote wie dieses
Hier geht es zu unserem Impressum, den Allgemeinen Geschäftsbedingungen, den Hinweisen zum Datenschutz und nutzungsbasierter Online-Werbung.