

Immobilien Sterk GmbH & Co. KG
Herr Ralph Schneider
+ 4 ···
Nr. anzeigenPreise & Kosten
Provision für Käufer
3,57% inkl. 19% MwSt.
Lage
Repräsentative Innenstadtlage von Ravensburg im Bereich der vorderen Federburgstraße direkt am Fuße des Mehlsacks, nur wenige Schritte vom Marienplatz entfernt.
Das Haus
Baujahr
1951
Energie & Heizung
Warum sehe ich diese Anzeige? – Du siehst diese Anzeige basierend auf Ihrer Navigation auf unserer Website und den Suchkriterien, die du verwendet hast.
Weitere Energiedaten
Energieträger
Öl
Heizungsart
Zentralheizung
Details
Objektbeschreibung
Nur einen Steinwurf vom Marienplatz entfernt, präsentiert sich diese charmante Stadtvilla aus den 50'er Jahren in privilegierter Lage in der vorderen Federburgstraße, direkt am Fuße des Mehlsacks.
Diese im Jahre 1951 erbaute 2,5-geschossige Liegenschaft verfügt über eine Gesamtfläche von rund 396 m² auf insgesamt 3...
Ausstattung
* Massivbauweise
* Öl-Zentralheizung
* Holz-/Alufenster
* Bodenbeläge mit Parkett/Stein/Fliesen
* 2 Garagen
* 3 PKW-Stellplätze
* großer Balkon mit Südausrichtung mit ca. 26 m²
* Dachloggia
* Einbauspots
* 2 Bäder
* sichtbare Holzbalken
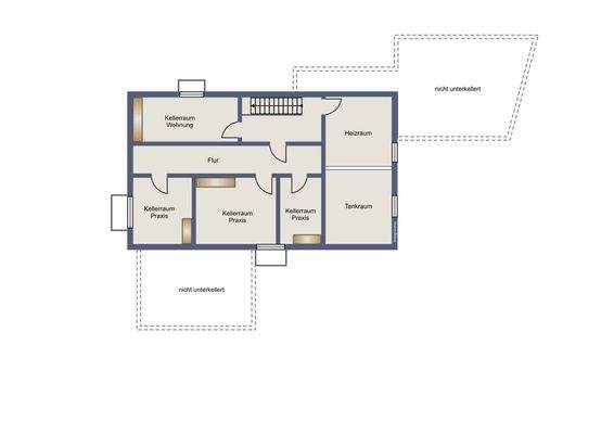
* Vollunterkellerung
Preisinformation
3 Stellplätze
2 Garagenstellplätze
Weitere Informationen
Sonstiges
Energieausweis in Vorbereitung.
Stichworte
Gesamtfläche: 396,46 m², Anzahl Balkone: 2, 3 Etagen
Anbieter der Immobilie

Online-ID: 2lsg65w
Referenznummer: 4752
Finde Angebote wie dieses
Hier geht es zu unserem Impressum, den Allgemeinen Geschäftsbedingungen, den Hinweisen zum Datenschutz und nutzungsbasierter Online-Werbung.