
Prima Service PS Immobilien e.U.
Frau PS Immo
+43 ···
Nr. anzeigenPreise & Kosten
Provision für Käufer
3%
Die Ladenfläche
Kategorie
Laden
Baujahr
2025
Bezug
sofort
Energie & Heizung
Warum sehe ich diese Anzeige? – Du siehst diese Anzeige basierend auf Ihrer Navigation auf unserer Website und den Suchkriterien, die du verwendet hast.
Heizwärmebedarf (HWB)
29,00 kWh/(m²·a)
Weitere Energiedaten
Heizungsart
Zentralheizung
Details
Objektbeschreibung
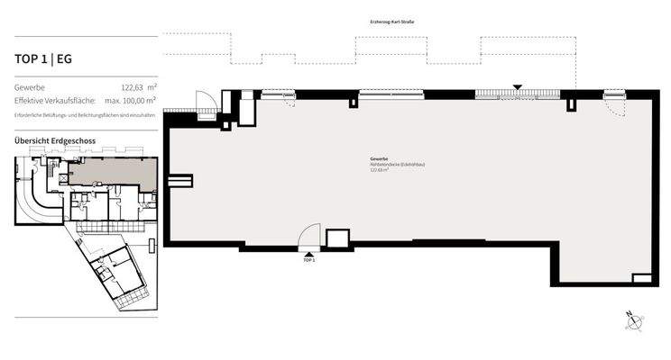
++ TOP GEWERBEFLÄCHE mit AUSLAGE ++ PROJEKT KARL74
++ Erzherzog-Karl-Straße | Bezugsfertig ab SOFORT ++
++ BESICHTIGUNGEN bereits MÖGLICH ++
Inmitten der begehrten Donaustadt wurde ein stilvolles Neubauprojekt realisiert.
Insgesamt wurden 33 freifinanzierte Eigentumswohnungen sowie eine Gewerbefläche...
Anbieter der Immobilie
Prima Service PS Immobilien e.U.
Westbahnstraße 13 GL 2, 1070 WIEN
Online-ID: 2lsga52
Referenznummer: 362/09813
Finde Angebote wie dieses
Hier geht es zu unserem Impressum, den Allgemeinen Geschäftsbedingungen, den Hinweisen zum Datenschutz und nutzungsbasierter Online-Werbung.