
Römmler Immobilien GmbH
Herr Tom Römmler
017 ···
Nr. anzeigenPreise & Kosten
Provision für Käufer
3,57 %
Provision inkl. der gestetzlichen MwSt.
Lage
Die traditionsreiche Universitätsstadt Freiberg liegt malerisch im Herzen Sachsens und bildet das kulturelle und wirtschaftliche Zentrum des ländlichen Raums zwischen den Metropolregionen Dresden und Chemnitz. Mit rund 40.000 Einwohnern bietet die Stadt eine gelungene Mischung aus urbanem Flair und naturnaher...
Die Wohnung
Wohnungslage
Erdgeschoss
Wohnanlage
Energie & Heizung
Warum sehe ich diese Anzeige? – Du siehst diese Anzeige basierend auf Ihrer Navigation auf unserer Website und den Suchkriterien, die du verwendet hast.
Energieausweistyp
Verbrauchsausweis
Gebäudetyp
Wohngebäude
Wesentliche Energieträger
Gas
Gültigkeit
13.09.2018 bis 12.09.2028
Effizienzklasse
D
Endenergieverbrauch
109,00 kWh/(m²·a)
Weitere Energiedaten
Energieträger
Gas
Heizungsart
Zentralheizung
Details
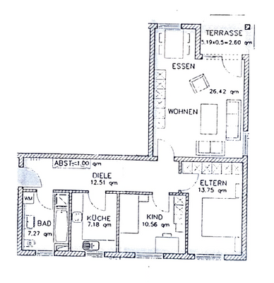
Objektbeschreibung
Diese gepflegte 3-Zimmer-Erdgeschosswohnung in einem soliden Mehrfamilienhaus aus dem Jahr 1994 vereint attraktives Wohnen mit einer interessanten Investitionsmöglichkeit. Auf rund 78,85 m² Wohnfläche bietet sie eine durchdachte Raumaufteilung, moderne Ausstattung und viele Annehmlichkeiten.
Das Herzstück der Wohnung...
Ausstattung
?? Wohnraum & Ausstattung
+ Erdgeschosswohnung in gepflegtem Mehrfamilienhaus (Baujahr 1994)
+ ca. 78,85 m² Wohnfläche
+ 3 gut geschnittene Zimmer
+ durchgehend moderner Fliesenboden
+ helle, freundliche Raumaufteilung
?? Außenbereich
+ kleine, gemütliche Terrasse
+ eigener...
Preisinformation
1 Stellplatz
Weitere Informationen
Sonstiges
Rechtlicher Hinweis:
Sämtliche Objektangaben basieren auf den uns erteilten Informationen des Verkäufers. Sie wurden gewissenhaft wiedergegeben. Eine Gewähr für ihre Richtigkeit kann jedoch nicht übernommen werden. Der Empfänger kann sich nur darauf berufen, von diesem Angebot bereits vorher Kenntnis...
Anbieter der Immobilie
Römmler Immobilien GmbH
Berthelsdorfer Str. 75, 09599 Freiberg
Online-ID: 2lskk52
Referenznummer: C26
Finde Angebote wie dieses
Hier geht es zu unserem Impressum, den Allgemeinen Geschäftsbedingungen, den Hinweisen zum Datenschutz und nutzungsbasierter Online-Werbung.