
Böchzelt Immobilien Immobilienverwaltung Immobilienmakler GmbH
Milchberger
004 ···
Nr. anzeigenPreise & Kosten
Provision für Käufer
3% des Kaufpreises zzgl. 20% USt.
Lage
Das Zinshaus in der Kirchengasse liegt direkt im Stadtzentrum Knittelfelds. Einkäufe des täglichen Gebrauches können im näheren Umfeld erledigt werden und auch die Anbindung an den öffentlichen Nahverkehr liegt unweit der Liegenschaft. In der unmittelbaren Umgebung finden sich viele Parkmöglichkeiten (Kurzparkzone, Parkhaus...
Das Renditeobjekt
Baujahr
1960
Bezug
sofort
Energie & Heizung
Warum sehe ich diese Anzeige? – Du siehst diese Anzeige basierend auf Ihrer Navigation auf unserer Website und den Suchkriterien, die du verwendet hast.
Heizwärmebedarf (HWB)
58,60 kWh/(m²·a)
Gesamtenergieeffizienz (fGEE)
0,97
Weitere Energiedaten
Energieträger
Fernwärme
Heizungsart
Zentralheizung
Details
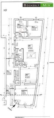
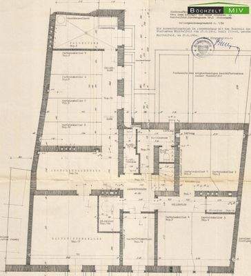
Objektbeschreibung
Zum Verkauf gelangt ein gepflegtes Zinshaus im Zentrum Knittelfelds. Das Objekt verfügt teilweise über ein Kellergeschoss, Erdgeschoss, 1. Obergeschoss, 2. Obergeschoss sowie einem ausgebauten Dachgeschoss. Im Erdgeschoss befinden sich zwei Geschäftsräumlichkeiten mit ca. 125 und 137 m², in den Obergeschossen befinden sich...
Weitere Informationen
Stichworte
Rolladen, Wohnfläche: 570,10 m², Nutzfläche: 831,71 m², Verkaufsfläche: 261,61 m², Anzahl Balkone: 1, Bundesland: Steiermark, 5 Etagen, modernisiert: 2023, modernisiert
Anbieter der Immobilie
Böchzelt Immobilien Immobilienverwaltung Immobilienmakler GmbH
Schmittstr 17, 8720 Knittelfeld
Online-ID: 2lsl65f
Referenznummer: OBGC20250502095357400987f96dd43
Finde Angebote wie dieses
Günstige Immobilienfinanzierung einfach online berechnen
Persönliches Angebot berechnenWarum sehe ich diese Werbung? – Du siehst diese Werbung basierend auf Deiner Navigation auf unserer Website und der von Dir verwendeten Suchkriterien.
Diese Werbung wird bezahlt von durchblicker
Werbung melden
Hier geht es zu unserem Impressum, den Allgemeinen Geschäftsbedingungen, den Hinweisen zum Datenschutz und nutzungsbasierter Online-Werbung.