
Saxowert Immobilien GmbH & Co. KG
Herr Willi Weickert
+ 4 ···
Nr. anzeigenPreise & Kosten
Provision für Käufer
3,57% inkl. gesetzlicher MwSt.
Lage
Stadt Wehlen, ein malerisches Städtchen im Herzen der Sächsischen Schweiz, bietet eine idyllische Umgebung für Ihr neues Zuhause. Die Lage dieser Immobilie ist besonders attraktiv, da sie sowohl Ruhe als auch Nähe zu urbanen Annehmlichkeiten vereint. Umgeben von den beeindruckenden Felsformationen der Elbsandsteingebirge...
Das Haus
Kategorie
Einfamilienhaus
Baujahr
2005
Bezug
in Absprache
Energie & Heizung
Warum sehe ich diese Anzeige? – Du siehst diese Anzeige basierend auf Ihrer Navigation auf unserer Website und den Suchkriterien, die du verwendet hast.
Energieausweistyp
Verbrauchsausweis
Gebäudetyp
Wohngebäude
Wesentliche Energieträger
Gas
Gültigkeit
10.11.2022 bis 10.11.2032
Effizienzklasse
B
Endenergieverbrauch
59,60 kWh/(m²·a)
Weitere Energiedaten
Energieträger
Gas
Heizungsart
Zentralheizung
Details
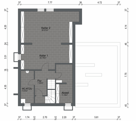
Objektbeschreibung
Zum Verkauf steht dieses ca. 2005 in Massivbauweise errichtete, luxuriöse Einfamilienhaus. Das Haus befindet sich in einem tadellosen Zustand und überzeugt durch seine großzügigen Räume sowie der traumhaften Lage in der Sächsischen Schweiz.
Mit einer Wohnfläche von 225 m² bietet dieses beeindruckende Haus einen...
Ausstattung
+ Hochwertiges freistehendes Einfamilienhaus (Massivbauweise)
+ Energieeffizienzklasse B
+ ca. 225 qm Wohnfläche
+ Baujahr ca. 2005
+ 56 m² großes Wohnzimmer mit hochwertigem Echtholzfußboden
+ galerieartiges Obergeschoss
+ Hochwertige Aluminiumfenster
+ Elektrische Außenrollläden an allen Fenstern...
Preisinformation
3 Garagenstellplätze
Weitere Informationen
Sonstiges
Alle in diesem Angebot enthaltenen Angaben, Darstellungen und Preise stammen ausschließlich vom Eigentümer oder eines Dritten. Eine Haftung unseres Unternehmens hierfür ist ausgeschlossen.
Stichworte
Garage vorhanden, Stellplatz vorhanden, Anzahl der Schlafzimmer: 4, Anzahl der Badezimmer: 2, Anzahl...
Anbieter der Immobilie
Online-ID: 2lspd54
Referenznummer: 4095
Finde Angebote wie dieses
Hier geht es zu unserem Impressum, den Allgemeinen Geschäftsbedingungen, den Hinweisen zum Datenschutz und nutzungsbasierter Online-Werbung.