
Nic. von der Meden Verwaltungs GmbH
Herr Tom Zoega
Kontaktiere den Anbieter schriftlich, es ist keine Telefonnummer hinterlegt.
Preise & Kosten
in Warmmiete enthalten
Kaution
9.300,00
Warum sehe ich diese Anzeige? – Du siehst diese Anzeige basierend auf Ihrer Navigation auf unserer Website und den Suchkriterien, die du verwendet hast.
Lage
Hoheluft-Ost gehört zu den begehrtesten Stadtteilen Hamburgs. Geprägt von grünen Straßen, charmanten Altbauten und urbaner Lebensqualität, bietet die Lage im Falkenried eine perfekte Mischung aus Ruhe und Nähe zum Geschehen.
Zahlreiche Einkaufsmöglichkeiten, Cafés, Restaurants und Wochenmärkte befinden sich in...
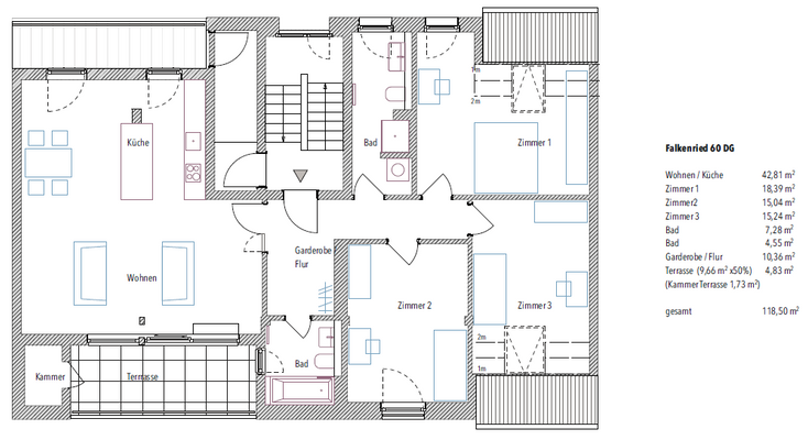
Die Wohnung
Wohnungslage
4. Geschoss (Dachgeschoss)
Bezug
ab 15.10.2025
Derzeitige Nutzung
frei
Wohnanlage
Energie & Heizung
Warum sehe ich diese Anzeige? – Du siehst diese Anzeige basierend auf Ihrer Navigation auf unserer Website und den Suchkriterien, die du verwendet hast.
Energieausweistyp
Bedarfsausweis
Gebäudetyp
Wohngebäude
Baujahr laut Energieausweis
1954
Wesentliche Energieträger
Nahwärme aus Kraft-Wärme-Kopplung, fossil, Strom-Mix
Gültigkeit
07.02.2018 bis 06.02.2028
Effizienzklasse
G
Endenergiebedarf
214,80 kWh/(m²·a)
Weitere Energiedaten
Energieträger
Fernwärme
Heizungsart
Zentralheizung
Details
Objektbeschreibung
Die modernen 4-Zimmer-Wohnungen befinden sich im Dachgeschoss eines gepflegten Mehrfamilienhauses. Das Gebäude wurde im Zuge des Ausbaus mit einem Wärmeverbundsystem energetisch saniert.
Ausstattung
- Wohn- und Küchenbereich mit moderner, offener Einbauküche
- Zwei stilvolle Bäder: eines mit Dusche, das andere mit Badewanne
- Großzügige Terrasse mit Weitblick über Hoheluft-Ost
- Helle, offene Wohnbereiche mit viel Tageslicht
- Zur Wohnung gehört ein separater Kellerraum
- Die Heizung ist an das...
Weitere Informationen
Besichtigungstermine
Keine telefonische Terminvergabe!
Bei Interesse an einem Besichtigungstermin senden Sie uns bitte eine Anfrage über „Anfragen senden“. Bitte geben Sie unbedingt Ihre Telefonnummer und E-Mail-Adresse an.
Wir werden Sie per Mail benachrichtigen, sobald wir einen Besichtigungstermin vereinbaren...
Dokumente
Anbieter der Immobilie
Herr Tom Zoega
Dein Ansprechpartner
Kontaktiere den Anbieter schriftlich, es ist keine Telefonnummer hinterlegt.
Online-ID: 2lsqg5p
Referenznummer: 106 012
Finde Angebote wie dieses
Hier geht es zu unserem Impressum, den Allgemeinen Geschäftsbedingungen, den Hinweisen zum Datenschutz und nutzungsbasierter Online-Werbung.